Istra,Novigrad-Adaptirana kuća s vrtom i pogledom na more
Hrvatska, Istarska županija, Novigrad, Novigrad,
-
135
-
4
-
440000 EUR stambeni kredit
- Oglas broj: 258923
- Agencijska šifra: 300441010-512
- Datum objave: 09.10.2025
RE/MAX Centar nekretnina iz svoje bogate ponude izdvaja ovu prekrasnu kuću s dvorištem i panoramskim pogledom na more i grad Novigrad. Smještena u mirnom naselju u predgrađu Novigrada, ova nekretnina predstavlja savršenu kombinaciju komfora, funkcionalnosti i mediteranskog šarma.
Kuća u nizu, potpuno adaptirana i opremljena, prostire se na četiri etaže i ima unutarnju neto površinu od 135 m², uz dodatnih 25 m² natkrivene terase te pripadajuću uređenu okućnicu od cca 20 m². S viših etaža pruža se otvoren pogled na more.
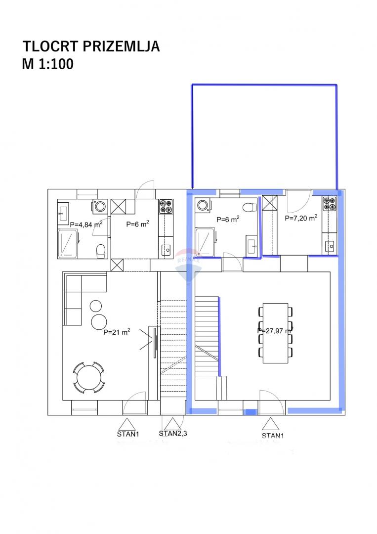
U prizemlju se nalazi moderno uređena kuhinja, kupaonica i blagovaonica s izlazom na natkrivenu terasu. U ovom prostoru ugrađeno je električno podno grijanje koje osigurava ugodnu toplinu i savršen komfor tijekom cijele godine. Terasa je opremljena pomičnom pergolom, ljetnom kuhinjom, vanjskim tušem te hidromasažnom kadom idealno mjesto za opuštanje i druženje.
Na prvom katu smješteni su dnevni boravak i jedna spavaća soba, dok drugi kat obuhvaća dodatnu spavaću sobu i kupaonicu. Na trećem katu nalazi se glavna spavaća soba s vlastitom kupaonicom i predivnim pogledom na more. Na svakoj etaži ugrađen je klima sustav sveukupno četiri unutarnje i dvije vanjske jedinice, a opskrba toplom vodom osigurana je pomoću dva električna bojlera.
Cijela kuća opremljena je visokokvalitetnim namještajem izrađenim po mjeri, što dodatno naglašava eleganciju prostora i omogućuje savršeno iskorištenje svakog kvadrata.
Ova elegantna kuća idealna je za obiteljski život ili kao investicija u turistički najam. Zahvaljujući vrhunskoj izvedbi, promišljenom rasporedu, kvalitetnom namještaju i brojnim dodatnim sadržajima, pruža visoku razinu udobnosti i osjećaj pravog mediteranskog doma.
ID KOD AGENCIJE:-512
Kuća u nizu, potpuno adaptirana i opremljena, prostire se na četiri etaže i ima unutarnju neto površinu od 135 m², uz dodatnih 25 m² natkrivene terase te pripadajuću uređenu okućnicu od cca 20 m². S viših etaža pruža se otvoren pogled na more.
U prizemlju se nalazi moderno uređena kuhinja, kupaonica i blagovaonica s izlazom na natkrivenu terasu. U ovom prostoru ugrađeno je električno podno grijanje koje osigurava ugodnu toplinu i savršen komfor tijekom cijele godine. Terasa je opremljena pomičnom pergolom, ljetnom kuhinjom, vanjskim tušem te hidromasažnom kadom idealno mjesto za opuštanje i druženje.
Na prvom katu smješteni su dnevni boravak i jedna spavaća soba, dok drugi kat obuhvaća dodatnu spavaću sobu i kupaonicu. Na trećem katu nalazi se glavna spavaća soba s vlastitom kupaonicom i predivnim pogledom na more. Na svakoj etaži ugrađen je klima sustav sveukupno četiri unutarnje i dvije vanjske jedinice, a opskrba toplom vodom osigurana je pomoću dva električna bojlera.
Cijela kuća opremljena je visokokvalitetnim namještajem izrađenim po mjeri, što dodatno naglašava eleganciju prostora i omogućuje savršeno iskorištenje svakog kvadrata.
Ova elegantna kuća idealna je za obiteljski život ili kao investicija u turistički najam. Zahvaljujući vrhunskoj izvedbi, promišljenom rasporedu, kvalitetnom namještaju i brojnim dodatnim sadržajima, pruža visoku razinu udobnosti i osjećaj pravog mediteranskog doma.
ID KOD AGENCIJE:-512
- Osnovni podaci
- Tip kuće: u nizu
- Površina: 135,0 m2
- Broj soba: 4,0
- Energetski razred: U pripremi
- Površina okućnice: 57 m2
- Dodatne informacije
- Lokacija
- Država: Hrvatska
- Regija: Istarska županija
- Općina: Novigrad, 52466
- Naselje: Novigrad
- Pogledaj na mapi
- Slične nekretnine
- Kuća - samostojeća - Novigrad (Novigrad) - 132 m2 - 540050 EUR
- Kuća - samostojeća - Novigrad (Novigrad) - 125 m2 - 380000 EUR
- Kuća - samostojeća - Novigrad (Dajla) - 142 m2 - 685000 EUR
- Kuća - samostojeća - Novigrad (Novigrad) - 132 m2 - 586500 EUR
- Kuća - samostojeća - Novigrad (Bužinija) - 130 m2 - 228000 EUR
Zainteresirani ste za ovu nekretninu?
Popunite KONTAKT OBRAZAC i naši agenti će Vas kontaktirati putem telefona ili e-maila u najkraćem mogućem roku.
Kontaktirajte nas
Zapratite nas na
Facebook-u
i
Instagramu
za
najbolje ponude nekretnina u kategoriji Kuće
u mjestu Novigrad, Hrvatska
Navigacija
Kontaktirajte oglašivača
Kontaktirajte oglašivača
Remax Centar Nekretnina
Krešimirova 12a, 51000 Rijeka
- Tel. agenta: xxxx-xxxx-2896 Prikaži broj
- Tel: xxxx-xxxx-5350 Prikaži broj
-
Licencirani posrednik
- Broj u registru posrednika: 656/2009