Krk, Moderna dvokatnica tik uz more
Hrvatska, Primorsko-goranska županija, Krk, Krk,
- 450 m2
- 10
- 6
- 1985000 EUR stambeni kredit
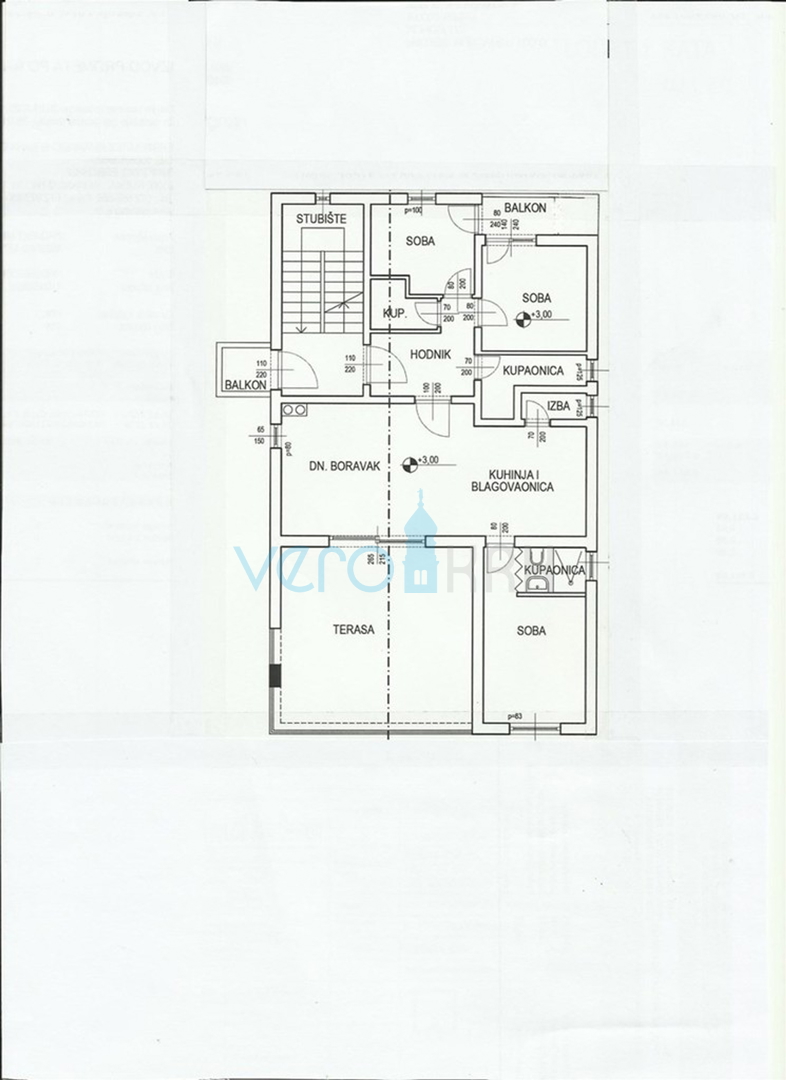
Krk, Prodajemo modernu dvokatnicu od 450 m2 sa 418 m2 okućnice u prvome redu do mora. Kuća je u naravi zgrada s tri etaže povezane unutarnjim stubištem te je orijentirana na jugoistok, prema moru. Svaka etaža ima ulazni prostor, tri spavaonice, tri k
upaonice, spremište, kuhinju i dnevni boravak u jednoj prostoriji, balkon i terasu. Također sa svake etaže pruža se otvoren pogled na more.
Lokacija ovog objekta je od izuzetne vrijednosti i samim time jedinstvena prilika za ulaganje!
... prikaži sve
- Osnovni podaci
- Novogradnja
- Tip kuće: samostojeća
- Površina: 450,0 m2
- Broj soba: 10,0
- Broj kupatila: 6
- Energetski razred: A
- Površina okućnice: 418 m2
- Infrastruktura
- Voda
- ADSL
- Klima uređaj
- Dodatne informacije
- Stanje: očuvano
- Broj parking mjesta: 6
- Lokacija
- Država: Hrvatska
- Regija: Primorsko-goranska županija
- Općina: Krk, 51500
- Naselje: Krk
- Pogledaj na mapi
- Dozvole
- Vlasnički list
- Slične nekretnine
- Kuća - samostojeća - Krk (Krk) - 460 m2 - 1 EUR
- Kuća - samostojeća - Krk (Krk) - 476 m2 - 1600000 EUR
- Kuća - samostojeća - Novogradnja - Krk (Linardići) - 410 m2 - 1500000 EUR
- Kuća - samostojeća - Krk (Linardići) - 469 m2 - 1500000 EUR
- Kuća - samostojeća - Krk (Pinezići) - 410 m2 - 700000 EUR
Vero Krk j.d.o.o.
Put mora 2/1, 51513 Omišalj
- Svi oglasi ove agencije
- Web site agencije
- Broj u registru posrednika: 193/2019
Zapratite nas na
Facebook-u
i
Instagramu
za
najbolje ponude nekretnina u kategoriji Kuće
u mjestu Krk, Hrvatska
Navigacija
Kontaktirajte oglašivača
Kontaktirajte oglašivača
Vero Krk j.d.o.o.
Put mora 2/1, 51513 Omišalj
- Tel. agenta: xxxx-xxxx-0604 Prikaži broj
- Tel: xxxx-xxxx-4911 Prikaži broj
- Mob: xxxx-xxxx-2102 Prikaži broj
- Svi oglasi ove agencije
- Web site agencije
- Broj u registru posrednika: 193/2019



















