Jablanovec - Novogradnja- I. kat - S3 - 82,86 m2 sa spremištem + GPM
Hrvatska, Grad Zagreb, Zaprešić, Jablanovec,
- 83 m2
- 4
- 1
- 207150 EUR stambeni kredit
Adria La Mar nekretnine posreduje u prodaji nove stambene zgrade u izgradnji na lokaciji Jablanovec.
U neposrednoj blizini je autobusna stanica, škola i vrtić kao i shopping centar West Gate.
U zgradi će se nalaziti ukupno četiri stambene jedin
ice, sa pripadajućim spremištem i garažnim parkirnim mjestom, raspoređeno na tri etaže.
U podrumu su smještene garaže i spremišta, u prizemlju stan sa pripadajućim vrtom, na I. katu se nalazi dva stana te jedan u potkrovlju.
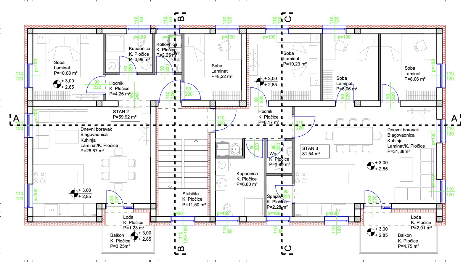
I. kat- S3 - sastoji se od ulaza i hodnika, dnevnog boravka, blagovaonice i kuhinje, tri spavaće sobe, kupaonice, wc-a, špajze, lođe i balkona te pripadajućeg spremišta u podrumu.
* Neto stambena površina stana sa spremištem iznosi 82,86 m2.
Uz stan se kupuje garažno mjesto ukupne veličine 25,56 m2.
Cijena garažnog mjesta iznosi 20.000,00 €, dok cijena vanjskog parkirnog mjesta iznosi 10.000,00 €.
ZAVRŠETAK GRADNJE- proljeće/2027
Svaki stan će biti opremljen podnim grijanjem na dizalicu topline, hlađenjem putem klima uređaja,el. podizanje roleta, PVC Salamander stolarijom sa troslojnim staklom, keramikom velikog formata 60x120 te walk in tuš kabinom.
Za više informacija kontaktirajte nas na 099/ (Magdalena) ili na
Provizija za kupca iznosi 3% + PDV od ukupno dogovorene kupoprodajne cijene sa uključenim pravnim praćenjem cjelokupnog procesa kupoprodaje.
Adria La Mar nekretnine d.o.o.
Teslina 14/1, Zagreb
... prikaži sve
- Osnovni podaci
- Novogradnja
- Površina: 82,9 m2
- Broj soba: 4,0
- Broj kupatila: 1
- Sprat: 1
- Orijentacija: Sjever,Jug,Zapad,Istok
- Energetski razred: U pripremi
- Infrastruktura
- Voda
- Kanalizacija
- Dodatne informacije
- Stanje: očuvano
- Garaža
- Broj parking mjesta: 2
- Lokacija
- Država: Hrvatska
- Regija: Grad Zagreb
- Općina: Zaprešić, 10290
- Naselje: Jablanovec
- Pogledaj na mapi
- Dozvole
- Građevinska dozvola
- Slične nekretnine
- Stan - Novogradnja - Zaprešić (Centar) - 80 m2 - 206065 EUR
- Stan - Novogradnja - Zaprešić (Centar) - 75 m2 - 264425 EUR
- Stan - Novogradnja - Zaprešić (Centar) - 76 m2 - 264425 EUR
- Stan - Novogradnja - Zaprešić (Centar) - 76 m2 - 264425 EUR
- Stan - Novogradnja - Zaprešić (Centar) - 76 m2 - 264425 EUR
La mar nekretnine
Teslina 14, 10000 Zagreb
- Svi oglasi ove agencije
- Web site agencije
- Broj u registru posrednika: 19/2020
Zapratite nas na
Facebook-u
i
Instagramu
za
najbolje ponude nekretnina u kategoriji Stanovi
u mjestu Zaprešić, Hrvatska
Navigacija
Kontaktirajte oglašivača
Kontaktirajte oglašivača
La mar nekretnine
Teslina 14, 10000 Zagreb
- Tel: xxxx-xxxx-1306 Prikaži broj
- Mob: xxxx-xxxx-1306 Prikaži broj
- Svi oglasi ove agencije
- Web site agencije
- Broj u registru posrednika: 19/2020














