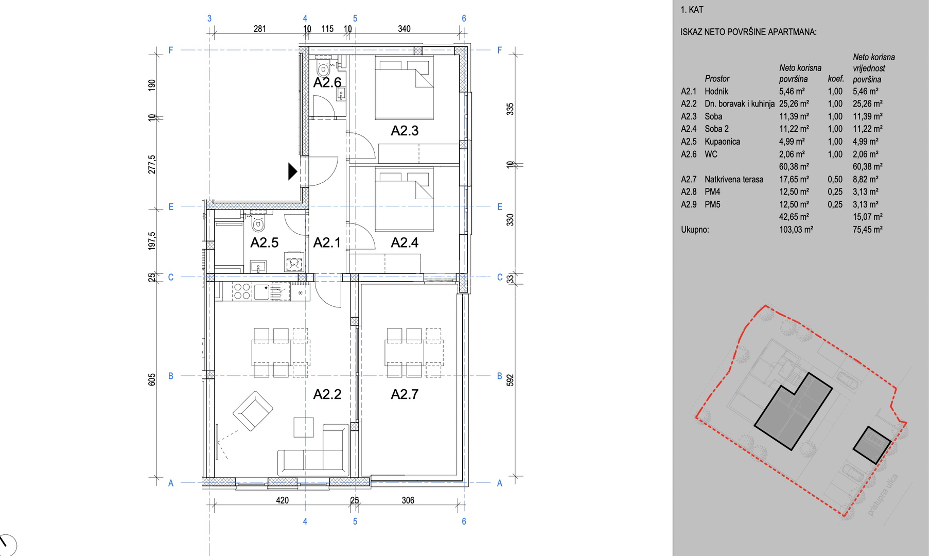
EKSKLUZIVNO! Novogradnja u Novalji s pogledom na more -A2- 75,45 m2 - I kat
Hrvatska, Ličko-senjska županija, Novalja, Novalja,
- 75 m2
- 3
- 1
- 252757 EUR stambeni kredit
Adria La Mar nekretnine posreduje u prodaji dva stambena objekta, zgrada 1 i zgrada 2, sa ukupno 11 stambenih jedinica izuzetne gradnje sa najvišim standardima kvalitete.
Zgrade su na atraktivnoj lokaciji u mirnom dijelu Novalje sa pogledom na more
(uključujući i prizemne stanove), te u blizini društvenih sadržaja (u krugu 200-500 m: tržnica, trgovine, shopping centar, ljekarna, dom zdravlja, restorani, barovi, šetnica, plaža...).
Stanove odlikuje funkcionalan raspored pravilnog tlocrta s minimalno 2 spavaće sobe te s naglaskom na komforne terase.
Prilikom gradnje vodilo se računa o iznimnoj kvaliteti materijala (armiranobetonske stropne ploče visine 20cm ; protuklizna keramika; prvorazredna kvaliteta materijala za izolaciju, PVC stolarija; staklena ograda; "multi-split" klima uređaj, podno grijanje u svim stanovima...) te o detaljima kao što su prekrasna hortikultura koja okružuje zgrade, otvoreni pogled na more iz svih stanova, moderan dizajn zgrade i stubišta.
Očekivani energetski certifikat: A razred .
Izvrsna dugoročna investicija i ugodno mjesto za odmor na Jadranskoj destinaciji.
Za više informacija, razgled nekretnine, uvid u arhitektonski projekt kontaktirajte nas na 099/ ili na .
Provizija za kupca iznosi 2% + PDV od ukupno dogovorene kupoprodajne cijene sa uključenim pravnim praćenjem cjelokupnog procesa kupoprodaje.
Adria La Mar nekretnine d.o.o.
Teslina 14/1, Zagreb
... prikaži sve
- Osnovni podaci
- Novogradnja
- Površina: 75,5 m2
- Broj soba: 3,0
- Broj kupatila: 1
- Sprat: 1
- Energetski razred: U pripremi
- Površina okućnice: 116 m2
- Infrastruktura
- Voda
- ADSL
- Klima uređaj
- Dodatne informacije
- Stanje: očuvano
- Broj parking mjesta: 2
- Lokacija
- Država: Hrvatska
- Regija: Ličko-senjska županija
- Općina: Novalja, 53291
- Naselje: Novalja
- Pogledaj na mapi
- Dozvole
- Građevinska dozvola
- Slične nekretnine
- Stan - Novogradnja - Novalja (Novalja) - 75 m2 - 204579 EUR
- Stan - Novogradnja - Novalja (Stara Novalja) - 75 m2 - 260000 EUR
- Stan - Novogradnja - Novalja (Novalja) - 75 m2 - 257646 EUR
- Stan - Novogradnja - Novalja (Novalja) - 74 m2 - 235305 EUR
- Stan - Novogradnja - Novalja (Novalja) - 70 m2 - 191000 EUR
La mar nekretnine
Teslina 14, 10000 Zagreb
- Svi oglasi ove agencije
- Web site agencije
- Broj u registru posrednika: 19/2020
Zapratite nas na
Facebook-u
i
Instagramu
za
najbolje ponude nekretnina u kategoriji Stanovi
u mjestu Novalja, Hrvatska
Navigacija
Kontaktirajte oglašivača
Kontaktirajte oglašivača
La mar nekretnine
Teslina 14, 10000 Zagreb
- Tel: xxxx-xxxx-1306 Prikaži broj
- Mob: xxxx-xxxx-1306 Prikaži broj
- Svi oglasi ove agencije
- Web site agencije
- Broj u registru posrednika: 19/2020























