Rijeka, Martinkovac - stan 2S+DB sa dva parkirna mjesta u garaži
Hrvatska, Primorsko-goranska županija, Rijeka, Martinkovac,
- 77 m2
- 3
- 1
- 380000 EUR stambeni kredit
Agencija za posredovanje nekretninama Kaiser Immobilien predstavlja novi, kvalitetno uređen stan u modernoj zgradi s liftom – idealan izbor za sve koji žele udoban i moderan životni prostor s prekrasnim pogledom na Učku, Opatiju i Kvarnerski zaljev.
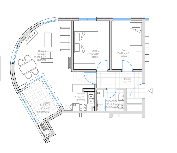
Nekretnina se nalazi u Rijeci, jednom od najvažnijih i najperspektivnijih gradova hrvatske obale. Smješten je na osmom katu uredno održavane zgrade, a ukupna stambena površina iznosi 63,1 m².
Stan se sastoji od dvije spavaće sobe – jedne veće i jedne manje, te prostranog i svijetlog dnevnog boravka povezanog s kuhinjom u otvorenom tlocrtu. Prostor je uređen moderno i ugodno, stvarajući ambijent idealan za svakodnevni život.
Stanu pripada lođa površine 7,9 m², savršena za opuštanje uz otvoren pogled prema Učki, Opatiji i Kvarnerskom zaljevu.
Kupaonica je moderna i funkcionalna.
Grijanje je podno na plin, a svaka prostorija ima vlastiti regulator temperature, čime je osigurana maksimalna udobnost i energetska učinkovitost.
Uz stan dolaze i dva garažna parkirna mjesta ukupne površine 25 m², kao i spremište od 5,8 m², što dodatno povećava praktičnost i vrijednost ove nekretnine.
Lokacija je izvrsna – Rijeka je udaljena samo 15 minuta od Opatije, 20 minuta od Zračne luke Rijeka, dok su otoci Krk i Cres, kao i brojna prirodna i kulturna odredišta, dostupni za kratke izlete. Grad je odlično prometno povezan s europskim metropolama poput Ljubljane, Trsta, Beča i Münchena.
Ovaj stan predstavlja idealnu priliku za kupnju modernog, potpuno uređenog doma u urbanoj i dobro povezanoj sredini na Jadranskoj obali.
Provizija agencije za kupca iznosi 3 % + PDV, a plaća se isključivo u slučaju realizacije kupoprodaje pri zaključenju pravnog akta.
Za dodatne informacije i dogovor oko razgleda, slobodno me kontaktirajte:
9
ID KOD AGENCIJE: 129-62
... prikaži sve
- Osnovni podaci
- Novogradnja
- Površina: 77,0 m2
- Broj soba: 3,0
- Broj kupatila: 1
- Sprat: 8 od 8
- Energetski razred: A+
- Dodatne informacije
- Površina balkona: 8,00 m2
- Garaža
- Broj parking mjesta: 2
- Natkriveno parking mjesto
- Lift
- Lokacija
- Država: Hrvatska
- Regija: Primorsko-goranska županija
- Općina: Rijeka, 51000
- Naselje: Martinkovac
- Pogledaj na mapi
Kaiser Immobilien d.o.o.
Maršala Tita 97, 51410 Opatija
- Svi oglasi ove agencije
- Web site agencije
- Broj u registru posrednika: 133/2024
Zapratite nas na
Facebook-u
i
Instagramu
za
najbolje ponude nekretnina u kategoriji Stanovi
u mjestu Rijeka, Hrvatska
Navigacija
Kontaktirajte oglašivača
Kontaktirajte oglašivača
Kaiser Immobilien d.o.o.
Maršala Tita 97, 51410 Opatija
- Tel: xxxx-xxxx-3491 Prikaži broj
- Mob: xxxx-xxxx-5152 Prikaži broj
- Svi oglasi ove agencije
- Web site agencije
- Broj u registru posrednika: 133/2024








