APARTMANI U KOMPLEKSU STAMBENIH ZGRADA U NOVOGRADNJI, 200 m OD MORA - VIR
Hrvatska, Zadarska županija, Vir, Vir,
- 80 m2
- 3
- 2
- 320000 EUR stambeni kredit
Prodaju se APARTMANI u stambenim zgradama u novogradnji na otoku Viru. Zgrade su smještene u mirnoj i slijepoj ulici u samom centru Vira u blizini glavne gradske plaže Jadro. Svaka zgrada ima 3 stambene jedinice – jedan apartman po katu. Nekretnina s
e proteže na prizemlje te 1. i 2. kat.
OPIS NEKRETNINE:
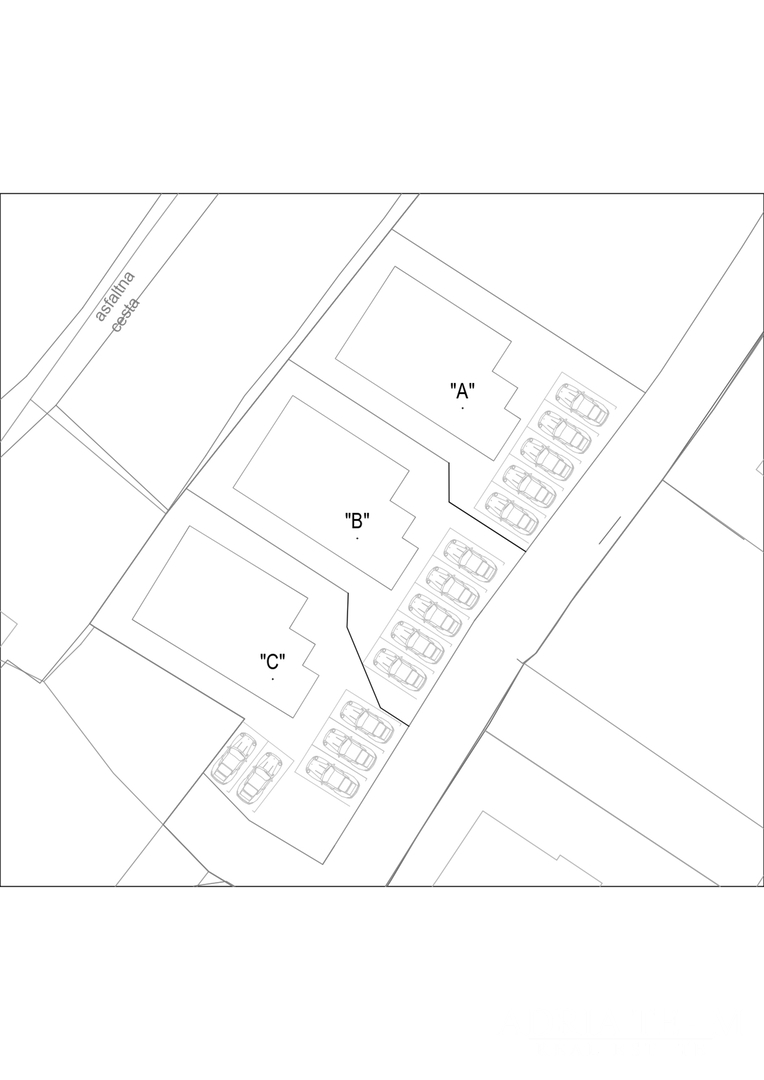
ZGRADA A
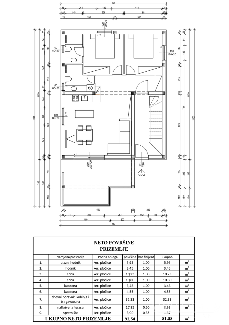
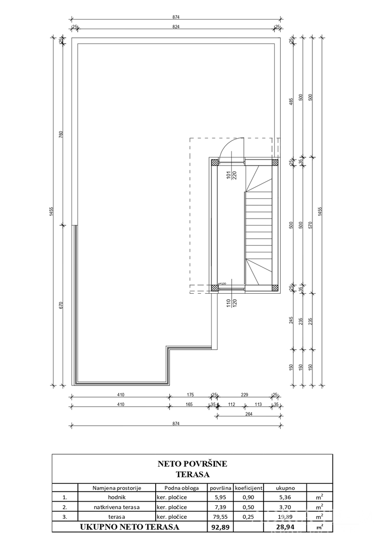
PRIZEMLJE - S1 (ulazni hodnik (5,95 m2), hodnik (3,45 m2), 2 spavaće sobe (10,23 m2, 10,80 m2), 2 kupaonice (3,48 m2, 4,55 m2), dnevni boravak + kuhinja + blagovaonica (32,33 m2), natkrivena terasa (8,93 m2), spremište (1,37 m2)) - 81,08 m2 - EUR
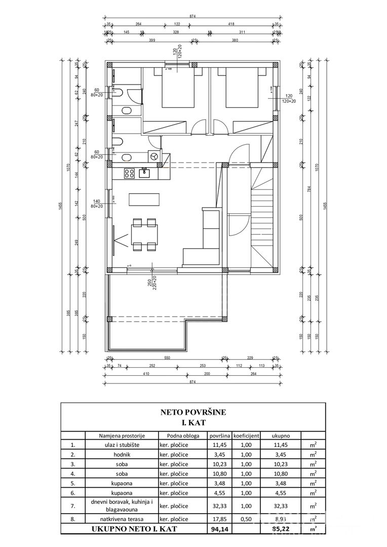
1. KAT - S2 (ulaz i stubište (11,45 m2), hodnik (3,45 m2), 2 spavaće sobe (10,23 m2, 10,80 m2), 2 kupaonice (3,48 m2, 4,55 m2), dnevni boravak + kuhinja + blagovaonica (32,33 m2), natkrivena terasa (8,93 m2)) - 85,22 m2 - EUR PRODANO
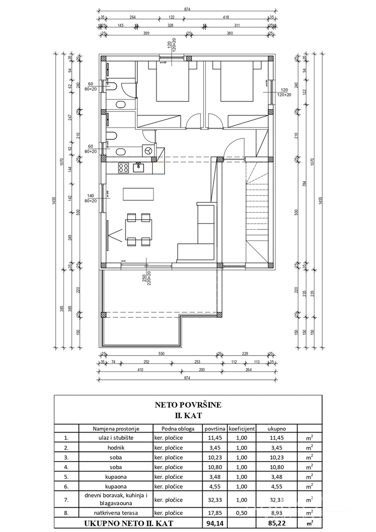
2. KAT - S3 (ulaz i stubište (11,45 m2), hodnik (3,45 m2), 2 spavaće sobe (10,23 m2, 10,80 m2), 2 kupaonice (3,48 m2, 4,55 m2), dnevni boravak + kuhinja + blagovaonica (32,33 m2), natkrivena terasa (8,93 m2), krovna terasa (28,94 m2)) - 85,22 m2 - EUR
ZGRADA B
PRIZEMLJE - S1 (ulazni hodnik (5,95 m2), hodnik (3,45 m2), 2 spavaće sobe (10,23 m2, 10,46 m2), 2 kupaonice (3,48 m2, 4,40 m2), dnevni boravak + kuhinja + blagovaonica (31,83 m2), natkrivena terasa (8,75 m2), spremište (1,37 m2)) - 79,92 m2 - EUR
1. KAT - S2 (ulaz i stubište (11,45 m2), hodnik (3,45 m2), 2 spavaće sobe (10,23 m2, 10,46 m2), 2 kupaonice (3,48 m2, 4,40 m2), dnevni boravak + kuhinja + blagovaonica (31,83 m2), natkrivena terasa (8,75 m2)) - 84,05 m2 - EUR PRODANO
2. KAT - S3 (ulaz i stubište (11,45 m2), hodnik (3,45 m2), 2 spavaće sobe (10,23 m2, 10,46 m2), 2 kupaonice (3,48 m2, 4,40 m2), dnevni boravak + kuhinja + blagovaonica (31,83 m2), natkrivena terasa (8,75 m2), krovna terasa (28,94 m2)) - 84,05 m2 - EUR
ZGRADA C
Stambena jedinica E1 – Prizemlje
Površina stambenog prostora: 62,42 m2
Ukupna korisna površina sa sporednim dijelovima i pripadcima: 134,16 m2
Ukupna korisna vrijednost: 78,59 m2
Raspored
Stan: hodnik, dnevni boravak, kuhinja, blagovaonica, 2 spavaće sobe, 2 kupaonice
Sporedni dijelovi:
Natkrivena terasa: 16,92 m2 (korisna vrijednost 8,46 m2)
Spremište: 3,90 m2 (korisna vrijednost 1,37 m2)
Stambenoj jedinici pripada:
Parkirno mjesto P3: 12,50 m2 (korisna vrijednost 2,50 m2)
Vrt VRT1: 38,42 m2 (korisna vrijednost 3,84 m2)
Stambena jedinica E3 – 1. kat, 2. kat + krovna terasa
Površina stambenog prostora: 62,42 m2
Ukupna korisna površina sa sporednim dijelovima i pripadcima: 210,23 m2
Ukupna korisna vrijednost: 123,71 m2
Raspored
Stan: hodnik, dnevni boravak, kuhinja, blagovaonica, 2 spavaće sobe, 2 kupaonice
Sporedni dijelovi:
Terasa natkrivena: 24,31 m2 (korisna vrijednost 12,16 m2)
Terasa nenatkrivena: 72,50 m2 (korisna vrijednost 18,13 m2)
Stubište: 26,00 m2 (korisna vrijednost 26,00 m2)
Stambenoj jedinici pripada:
Parkirno mjesto P1: 12,50 m2 (korisna vrijednost 2,50 m2)
Parkirno mjesto P2: 12,50 m2 (korisna vrijednost 2,50 m2)
OPIS MATERIJALA:
- kvalitetna plastična stolarija antracit boje s troslojnim staklom;
- rolete na struju;
- komarnici;
- fasada 10 cm stiropor;
- kamen travertin;
- crna ograda od kaljenog stakla;
- sve terase imaju pripremu za jacuzzi (dovod vode i odvodnja);
- keramika u cijelom apartmanu 90x90;
- keramika na terasama 90x90 i 2 cm debljine;
- u kupaonicama Geberit, Grohe, Aquaestil;
- sav namještaj u kupaonicama rađen po mjeri radi maksimalnog iskorištenja prostora;
- električno podno grijanje u kupaonicama;
- klimatizacija u spavaćim sobama i dnevnom boravku;
- protuprovalna i protupožarna ulazna vrata u stanove;
- portafon;
- knauf na stropovima apartmana s ugradbenom LED radnom rasvjetom u svim prostorijama i LED ambijentalnom rasvjetom (LED trake) u spavaćim sobama i dnevnom boravku;
- LED ambijentalna rasvjeta svih terasa (LED trake ispod kamenih poklopnica);
- na krovnoj terasi priprema za pergolu (struja i pripremljeni nosači za konstrukciju)
Apartmanu u prizemlju pripada spremište ispod stubišta i jedno parkirno mjesto.
Apartmanu na prvom katu pripadaju 2 parkirna mjesta.
Apartmanu na drugom katu pripadaju 2 parkirna mjesta i cijela krovna terasa.
Kupac ne plaća porez na promet nekretninama.
Planirani završetak zgrada A i B je početkom 2025., a zgrade C na jesen 2025. godine.
Napomena: U oglasu nisu navedeni opisi prodanih stanova.
Za sve dodatne informacije i dogovor o terminu obilaska, slobodno nas u bilo kojem trenutku kontaktirajte s povjerenjem.
... prikaži sve
- Osnovni podaci
- Novogradnja
- Površina: 79,9 m2
- Broj soba: 3,0
- Broj kupatila: 2
- Energetski razred: U pripremi
- Infrastruktura
- Klima uređaj
- Dodatne informacije
- Stanje: očuvano
- Broj parking mjesta: 10
- Lokacija
- Država: Hrvatska
- Regija: Zadarska županija
- Općina: Vir, 23234
- Naselje: Vir
- Pogledaj na mapi
- Dozvole
- Građevinska dozvola
- Vlasnički list
Adria Team Real Estate d.o.o.
Matije Gupca 40, 23000 Zadar
- Svi oglasi ove agencije
- Web site agencije
- Broj u registru posrednika: 38/2017
Zapratite nas na
Facebook-u
i
Instagramu
za
najbolje ponude nekretnina u kategoriji Stanovi
u mjestu Vir, Hrvatska
Navigacija
Kontaktirajte oglašivača
Kontaktirajte oglašivača
Adria Team Real Estate d.o.o.
Matije Gupca 40, 23000 Zadar
- Tel. agenta: xxxx-xxxx-9967 Prikaži broj
- Tel: xxxx-xxxx-5880 Prikaži broj
- Mob: xxxx-xxxx-8355 Prikaži broj
- Svi oglasi ove agencije
- Web site agencije
- Broj u registru posrednika: 38/2017


























































