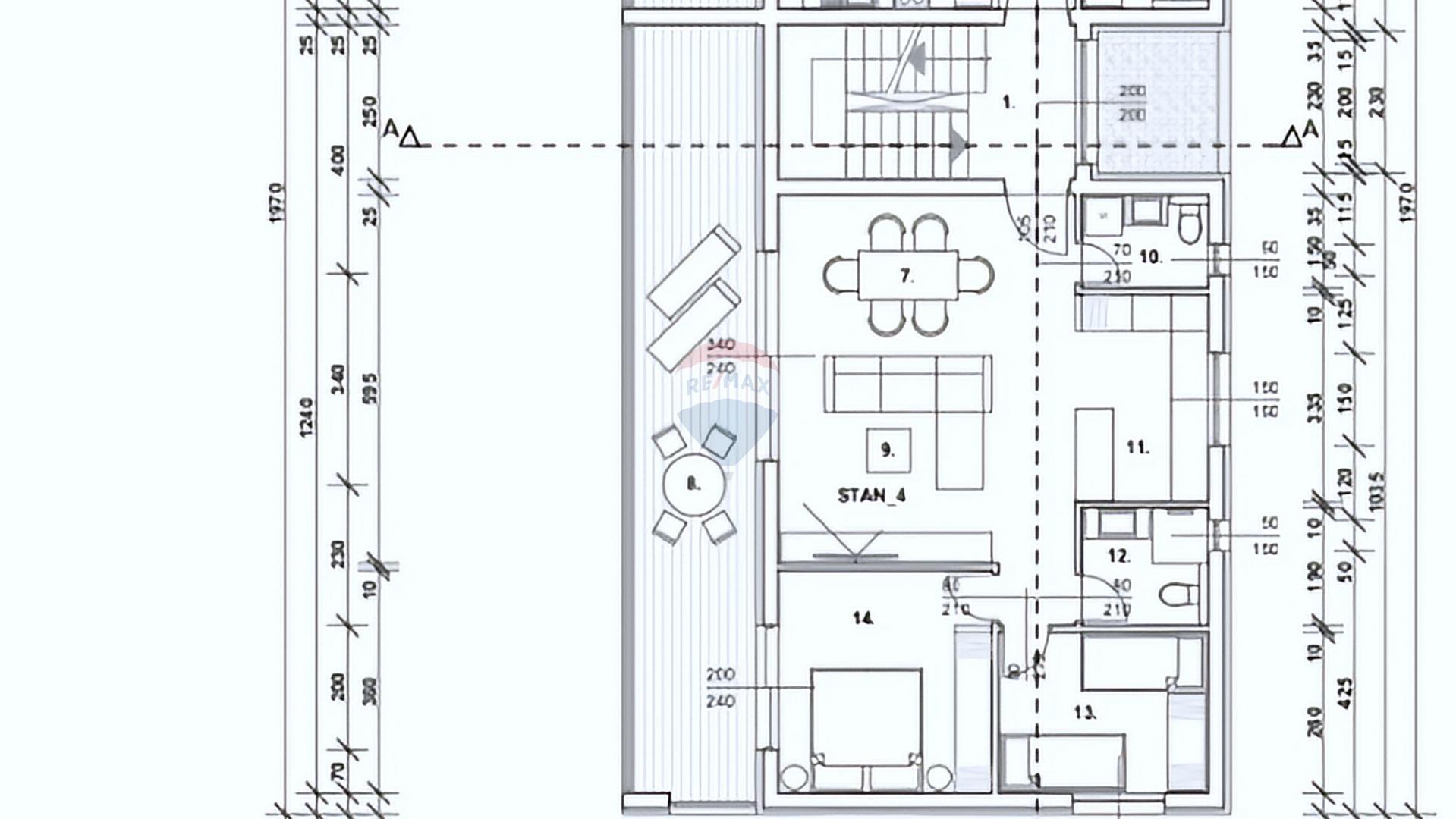
Istrien, Novigrad, Neubau – Moderne Wohnung an Ausgezeichneter Lage mit Meerblick
Novigrad, Hrvatska
65m2
3
1

