Haus Malinska, Malinska-Dubašnica, 238m2
Hrvatska, Primorsko-goranska županija, Malinska-Dubašnica, Malinska,
-
238
-
5
-
3
-
910.000 EUR Wohnungsbaudarlehen
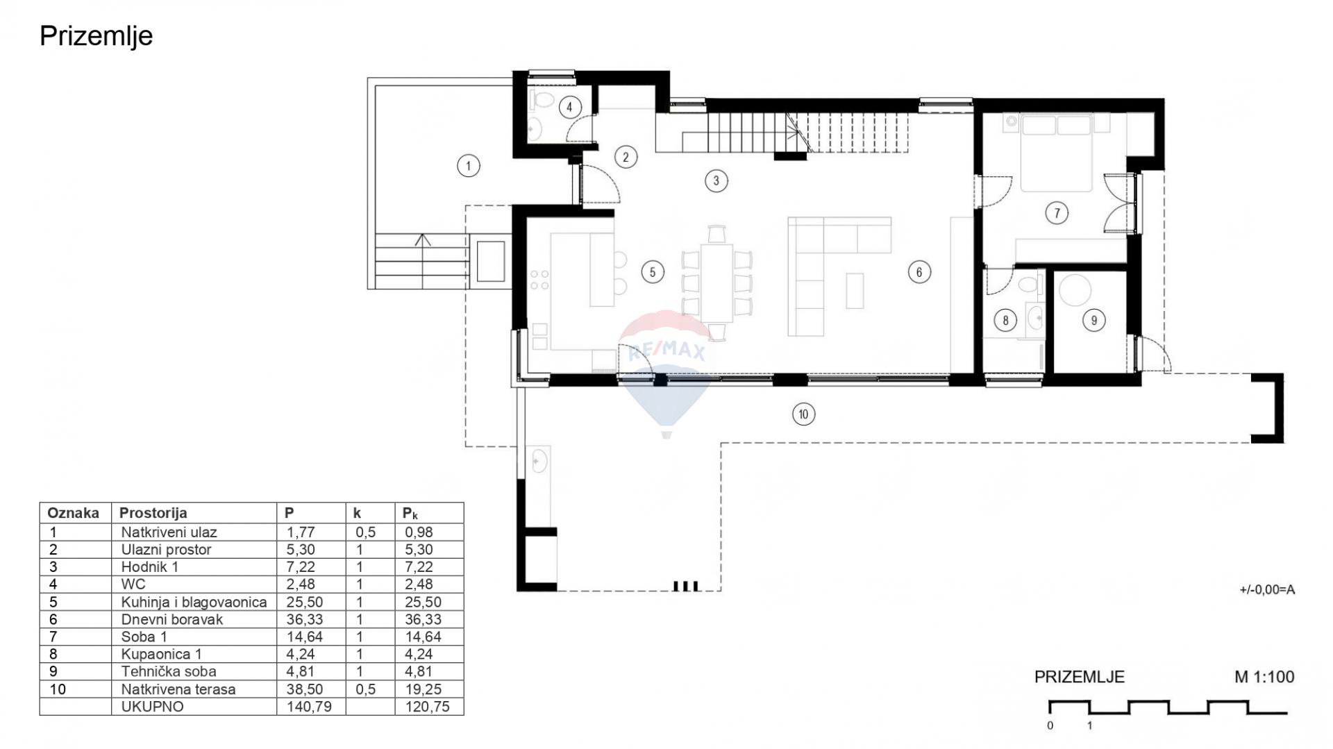
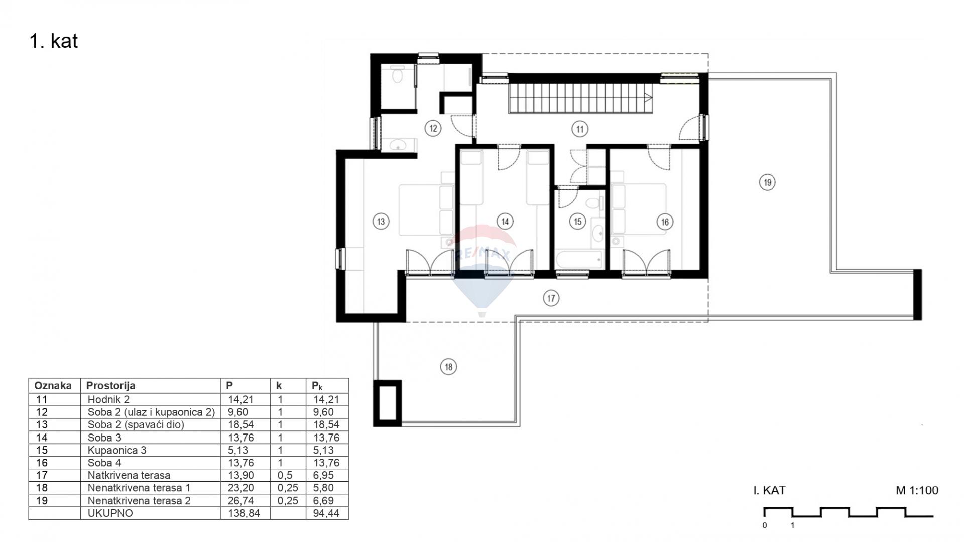
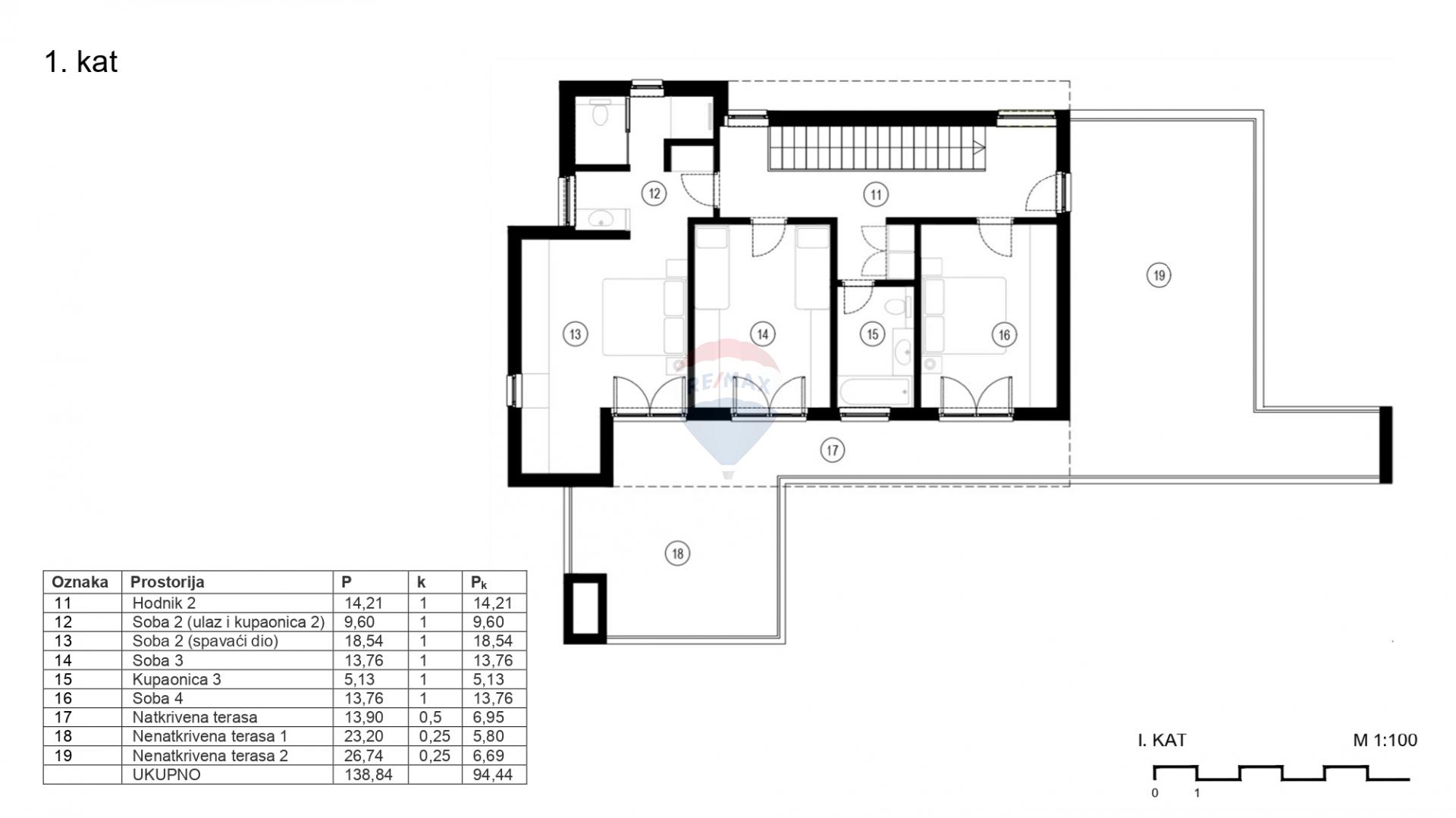
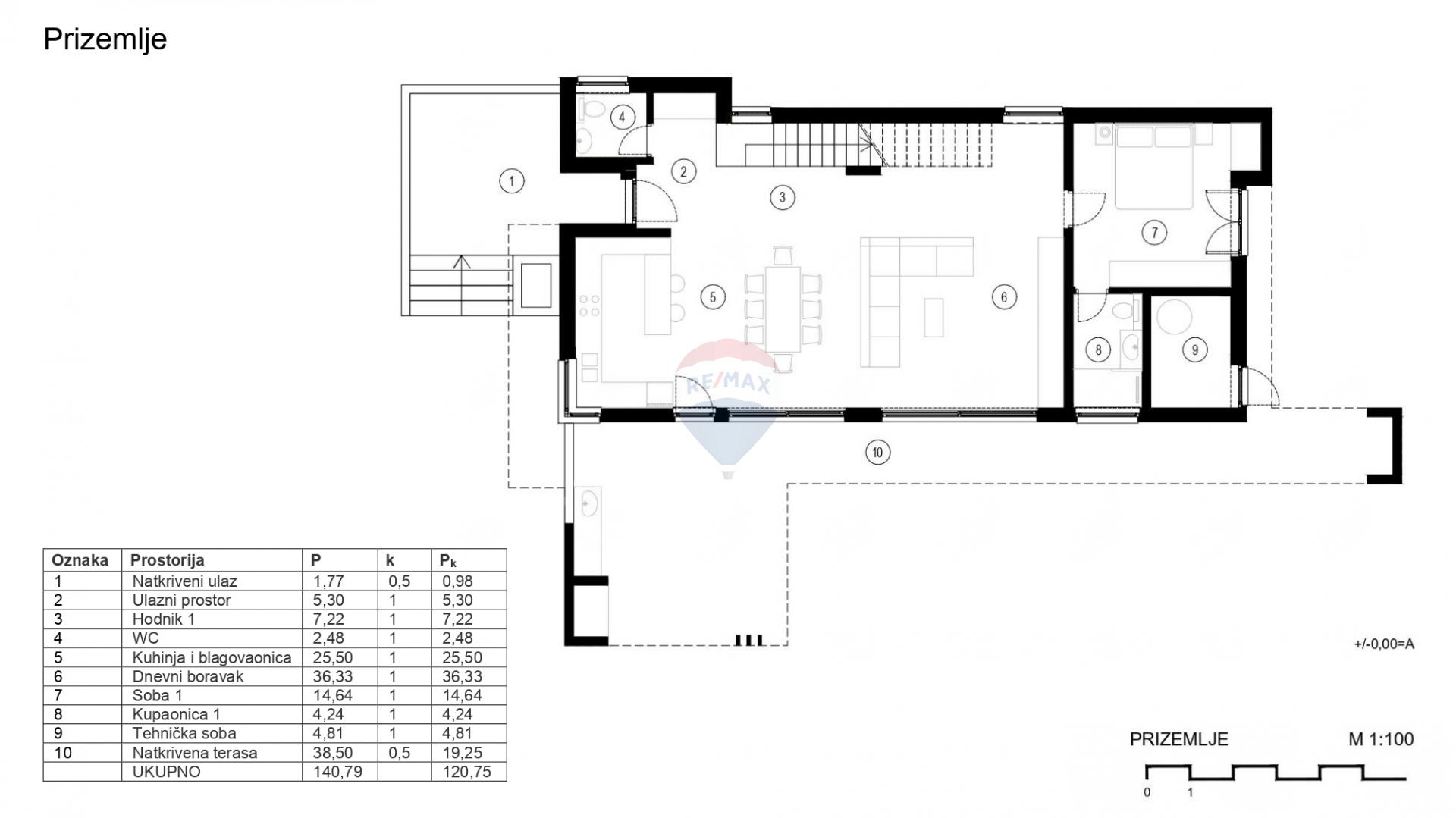
In ruhiger Lage in der Nähe von Malinska, auf der Insel Krk, befindet sich eine moderne imposante Villa im Bau, ideal für diejenigen, die Luxus, Komfort und Privatsphäre suchen. Die Villa erstreckt sich über zwei Etagen mit einer Gesamtwohnfläche von 215,19 m2 und ist von einem gepflegten Garten von 504 m2 umgeben, der einen beheizten Pool mit Sonnenterrasse, einen Wohnbereich mit Kamin und eine Außenküche sowie einen Grillplatz umfasst. Im Erdgeschoss gibt es ein geräumiges Wohnzimmer, Küche mit Essbereich, Technikraum, zusätzliches Badezimmer, Gäste-WC und ein Zimmer mit Zugang zur Terrasse. Im Obergeschoss befinden sich drei Schlafzimmer, von denen das Hauptbadezimmer über ein eigenes Bad verfügt, und alle Zimmer haben Zugang zu einer gemeinsamen Terrasse. Eine zusätzliche Anlage im Garten ist für den SPA-Bereich mit Sauna, Whirlpool und Wellness reserviert. Die Villa wird mit hochwertigen Materialien ausgestattet - hochwertige Tischlerei, Keramik und Stein, moderne Sanitärkeramik, Deckenklimaanlage und Fußbodenheizung mit Wärmepumpe. Die Umgebung wird mit mediterranen Pflanzen und Steindetails dekoriert und schafft eine ideale Oase der Entspannung.
ID CODE: 3-70601
ID CODE: 3-70601
- Grundinformation
- Neubau
- Haustyp: Einfamilienhaus
- Fläche: 238,0 m2
- Räume: 5,0
- Badezimmer: 3
- Energieeffizienz: In Vorbereitung
- Fläche des Gartens: 880 m2
- Weitere Informationen:
- Standort:
- Land: Hrvatska
- Region: Primorsko-goranska županija
- Stadt: Malinska-Dubašnica, 51511
- Ort: Malinska
- Schauen Sie auf der Karte:
- Ähnliche Eigenschaften
- Haus - Doppelhaus - Neubau - Malinska-Dubašnica (Milovčići) - 260 m2 - 1.150.000 EUR
- Haus - Einfamilienhaus - Malinska-Dubašnica - 230 m2 - 415.000 EUR
- Haus - Einfamilienhaus - Malinska-Dubašnica (Bogovići) - 220 m2 - 450.000 EUR
- Haus - Einfamilienhaus - Malinska-Dubašnica (Malinska) - 260 m2 - 1.350.000 EUR
- Haus - Einfamilienhaus - Malinska-Dubašnica (Malinska) - 240 m2 - 488.000 EUR
Sind Sie an dieser Immobilie interessiert?
Füllen Sie das KONTAKTFORMULAR AUS und unsere Agenten werden Sie schnellstmöglich telefonisch oder per E-Mail kontaktieren.
Kontaktieren Sie uns
Folgen Sie uns auf
Facebook
und
Instagram
für
die besten Immobilienangebote in der Kategorie Häuser
in Malinska-Dubašnica, Hrvatska