Banjole - Volme, neue Wohnung im ersten Stock, 2 Parkplatz
Hrvatska, Istarska županija, Medulin, Banjole,
- 104 m2
- 4
- 2
- 485.000 EUR Wohnungsbaudarlehen
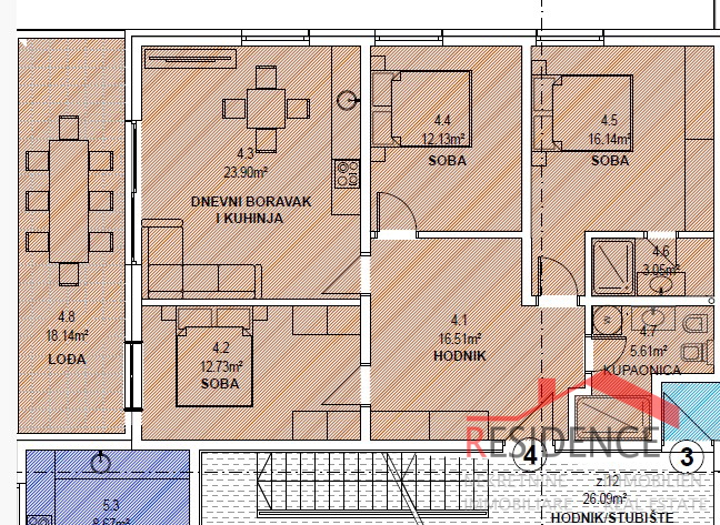
Wir verkaufen in Banjole, im dorf Volme, eine neue wohnung im ersten stock eines wohnhauses. Die wohnung mit einer gesamtfläche von 103,68 m2 besteht aus einem wohnzimmer mit küche und esszimmer, einer terrasse, drei schlafzimmern, zwei bädern und ei
nem flur. Zu den weiteren annehmlichkeiten gehören: 2 parkplätze, was die gesamtfläche von 108,36 m2 ergibt. Jedes zimmer hat eine Mitsubishi-klimaanlage. Fußbodenheizung. Laufen-Sanitärkeramik. Parkett in den schlafzimmern und Lamborghini-keramik in den anderen zimmern. Hochwertige aluminiumschreinereiarbeiten mit elektrischen jalousien und moskitonetzen. Sicherheitstür. Smart-Home-System. Blue king-granit. Hochwertige bauweise. Entfernung zum meer 400 meter. Ruhige und schöne lage.
*Möglichkeit zum Kaufen einer Garage von 14,69 m2 im Erdgeschoss des Gebäudes*
... zeige alles
- Grundinformation
- Neubau
- Fläche: 103,7 m2
- Räume: 4,0
- Badezimmer: 2
- Boden: 1
- Orientierung: Norden,Westen
- Energieeffizienz: A+
- Infrastruktur:
- Wasser
- Abwasser
- Klimaanlage
- Weitere Informationen:
- Zustand: Gepflegt
- Anzahl Parkplätze: 2
- Standort:
- Land: Hrvatska
- Region: Istarska županija
- Stadt: Medulin, 52203
- Ort: Banjole
- Schauen Sie auf der Karte:
- Berechtigungen
- Baugenehmigung
- Eigentumsbescheinigung
- Ähnliche Eigenschaften
- Wohnung - Medulin (Premantura) - 99 m2 - 459.500 EUR
- Wohnung - Neubau - Medulin (Banjole) - 110 m2 - 505.000 EUR
- Wohnung - Neubau - Medulin (Banjole) - 98 m2 - 450.000 EUR
- Wohnung - Medulin (Pješčana Uvala) - 96 m2 - 415.000 EUR
- Wohnung - Medulin (Pješčana Uvala) - 102 m2 - 512.500 EUR
Residence nekretnine
Dobrilina 9, 52100 Pula
- Alle Agenturanzeigen
- Website der Agentur
- Nummer im Maklerregister: 372/2009
Folgen Sie uns auf
Facebook
und
Instagram
für
die besten Immobilienangebote in der Kategorie Wohnungen
in Medulin, Hrvatska
Navigation
Kontaktieren Sie die Agentur
Kontaktieren Sie die Agentur
Residence nekretnine
Dobrilina 9, 52100 Pula
- Telefonnummer des Agenten xxxx-xxxx-7774 Zeigen
- Tel: xxxx-xxxx-0025 Zeigen
- Mob: xxxx-xxxx-9823 Zeigen
- Alle Agenturanzeigen
- Website der Agentur
- Nummer im Maklerregister: 372/2009


















