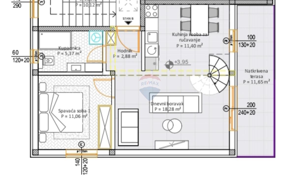
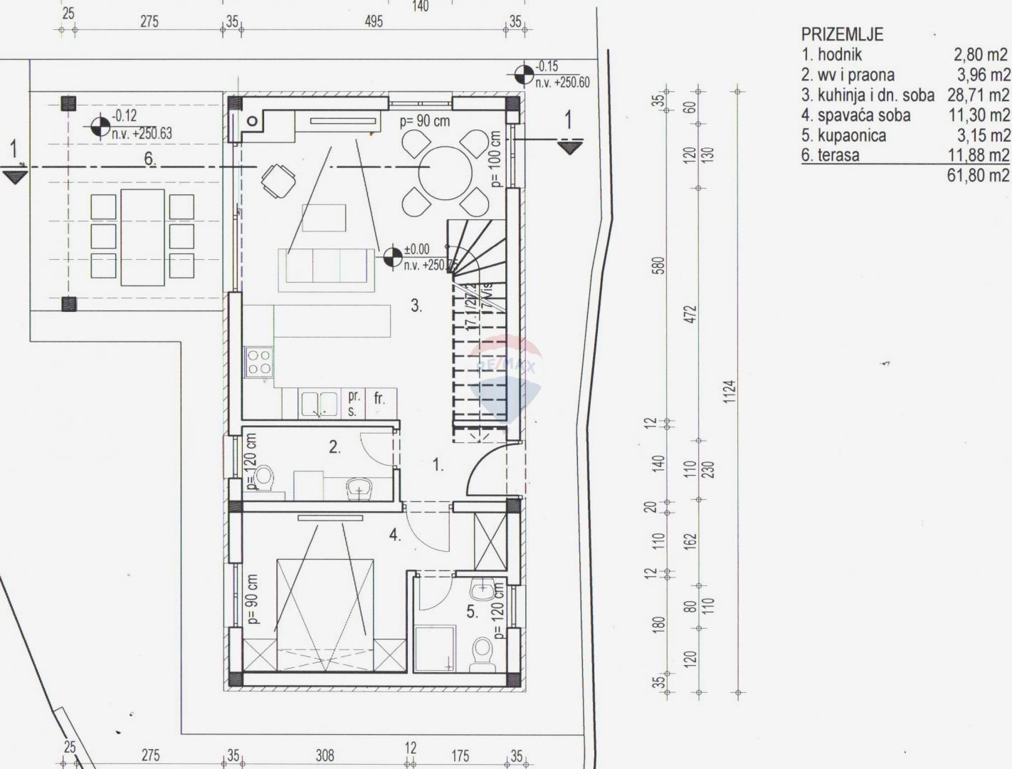
Istria, Novigrad, one-bedroom apartment with a gallery, 200 m from the sea
Novigrad, Hrvatska
40m2
2
1

