Mali Losinj - 4R+LR, 183.94 m2
Hrvatska, Primorsko-goranska županija, Mali Lošinj, Mali Lošinj,
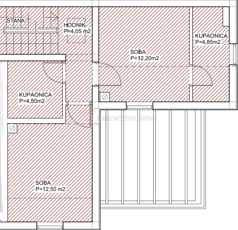
Essentially two apartments that can easily be combined into one.
First apartment: The two-story apartment in a residential building consists of an entrance hall, toilet, living room, kitchen with dining room, pantry and covered terrace, on the fir
st floor, and a staircase, hallway, storage room, two bedrooms, two bathrooms and uncovered terrace, on the second floor of the building, with a total area of 110.70 m2 (NAV 96.89 m2), and the following accessories are also part of the apartment: storage room in an auxiliary building, with an area of 8.80 m2 (NAV 6.60 m2), parking space on the flat accessible roof of the auxiliary building, with an area of 25.80 m2 (NAV 6.45 m2), parking space with an area of 20.00 m2 (NAV 5.00 m2) and a home garden with an area of 15.00 m2 (NAV 1.05 m2), with a total area of 180.30 m2 (115.99 m2). Second apartment: A two-story apartment in a residential building consisting of an entrance hall, toilet, living room, kitchen with dining room, pantry and uncovered terrace, on the first floor, and a staircase, hallway, two bedrooms and two bathrooms, on the second floor of the building, with a total area of 99.45 m2 (NAV 87.05 m2), and an integral part of the apartment are the following: a storage room in an auxiliary building, with an area of 8.70 m2 (NAV 6.53 m2), a parking space, with an area of 15.00 m2 (NAV 3.75 m2) and a home garden, with an area of 28.00 m2 (NAV 1.96 m2), with a total area of 151.15 m2 (99.29 m2).
... show all
- Basic information
- New building
- Property area: 183.9 m2
- Number of rooms: 6.0
- Bathrooms number: 4
- Orientation: South,West
- Energy class: A+
- Infrastructure:
- Water
- Sewage
- Additional information:
- State: preserved
- Parking spaces: 4
- Location
- Country: Hrvatska
- Region: Primorsko-goranska županija
- Municipality: Mali Lošinj, 51553
- Settlement: Mali Lošinj
- Location view on the map
- Permits
- Building permit
SOBOL T.O.P.A.
Zagrebačka 16, 51000 Rijeka
- All listings of this agency
- Agency web site
- Number in the register of intermediaries: 434/2009
Follow us on
Facebook
and
Instagram
for
the best real estate offers in the category Apartments
in city Mali Lošinj, Hrvatska
Navigation menu
Contact the advertiser
Contact the advertiser
SOBOL T.O.P.A.
Zagrebačka 16, 51000 Rijeka
- All listings of this agency
- Agency web site
- Number in the register of intermediaries: 434/2009


























