NOVOGRADNJA – APARTMANI U POVLJANI (OTOK PAG) | 800 m OD MORA
Hrvatska, Zadarska županija, Povljana, Povljana,
NEW DEVELOPMENT – APARTMENTS IN POVLJANA (PAG ISLAND)
Modern apartments for sale in a new residential development in Povljana on the island of Pag, located in a peaceful area approximately 800 m from the sea. Povljana is a beautiful and quiet dest
ination, ideal for holidays, permanent living, or tourist rental.
The building is constructed and equipped to a high standard and includes:
- Elevator
- Larger apartments feature central underfloor heating (throughout the entire apartment) + WindFree air conditioning
- Smaller apartments (S2 and S5) have air conditioning only, with underfloor heating in the bathroom
- WindFree air conditioning units
- Each apartment includes 1 outdoor parking space
- Possibility to purchase a garage parking space
- Storage room (4.38 m2) included with each apartment
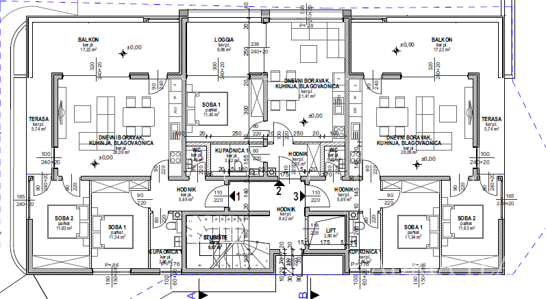
APARTMENT S1 (GROUND FLOOR) – TOTAL 84.86 m2
PRICE: €209,520 – SOLD
Layout:
Hallway – 5.49 m2
WC – 1.49 m2
Bathroom – 3.86 m2
Bedroom 1 – 11.34 m2
Living room + kitchen + dining area – 28.09 m2
Bedroom 2 – 11.63 m2
Balcony – 17.22 m2
Terrace – 5.74 m2
Storage – 4.38 m2
APARTMENT S2 (GROUND FLOOR) – TOTAL 49.79 m2
PRICE: €154,132
Layout:
Hallway – 3.95 m2
Bathroom – 3.92 m2
Living room + kitchen + dining area – 21.41 m2
Bedroom – 11.45 m2
Loggia – 9.06 m2
Storage – 4.38 m2
APARTMENT S3 (GROUND FLOOR) – TOTAL 84.86 m2
PRICE: €3,000 / m2
Layout:
Hallway – 5.49 m2
WC – 1.49 m2
Bathroom – 3.86 m2
Bedroom 1 – 11.34 m2
Living room + kitchen + dining area – 28.09 m2
Bedroom 2 – 11.63 m2
Balcony – 17.22 m2
Terrace – 5.74 m2
Storage – 4.38 m2
The apartment also includes a private garden/yard.
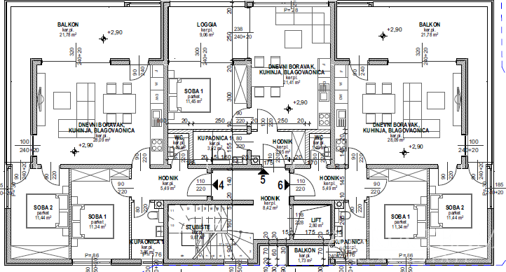
APARTMENT S4 (1ST FLOOR) – TOTAL 83.49 m2
PRICE: €208,050 – SOLD
Layout:
Hallway – 5.49 m2
WC – 1.49 m2
Bathroom – 3.86 m2
Bedroom 1 – 11.34 m2
Living room + kitchen + dining area – 28.09 m2
Bedroom 2 – 11.44 m2
Balcony – 21.78 m2
Storage – 4.38 m2
APARTMENT S6 (1ST FLOOR) – TOTAL 85.28 m2
PRICE: €208,560
Layout:
Hallway – 5.49 m2
WC – 1.49 m2
Bathroom – 3.92 m2
Bedroom 1 – 11.34 m2
Living room + kitchen + dining area – 28.09 m2
Bedroom 2 – 11.44 m2
Balcony – 21.78 m2
Balcony – 1.73 m2
Storage – 3.74 m2
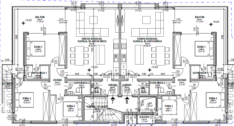
PENTHOUSE S7 – TOTAL 210.69 m2
Rooftop terrace + swimming pool
PRICE: €477,029 – SOLD
2nd Floor – Layout:
Hallway – 2.92 m2
WC – 1.45 m2
Living room + kitchen + dining area – 40.82 m2
Hallway – 5.12 m2
Bedroom 1 – 13.27 m2
Bathroom 1 – 3.36 m2
Bathroom 2 – 3.59 m2
Bedroom 2 – 15.22 m2
Bedroom 3 – 8.89 m2
Balcony – 17.78 m2
Staircase – 5.00 m2
Storage – 3.62 m2
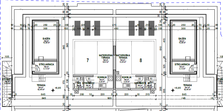
ROOFTOP TERRACE INCLUDES:
Terrace – 62.44 m2
Covered terrace – 6.52 m2
Swimming pool – 10.38 m2
Machinery room – 3.13 m2
WC – 1.30 m2
Storage – 1.17 m2
Kitchen – 3.33 m2
PENTHOUSE S8 – TOTAL 215.95 m2
Rooftop terrace + swimming pool
PRICE: €478,500
2nd Floor – Layout:
Hallway – 2.92 m2
WC – 1.45 m2
Living room + kitchen + dining area – 40.66 m2
Hallway – 5.12 m2
Bedroom 1 – 13.27 m2
Bathroom 1 – 3.36 m2
Bathroom 2 – 3.59 m2
Bedroom 2 – 15.22 m2
Bedroom 3 – 8.96 m2
Balcony – 17.78 m2
Balcony – 1.73 m2
Staircase – 5.00 m2
Storage – 3.62 m2
ROOFTOP TERRACE INCLUDES:
Terrace – 62.44 m2
Covered terrace – 6.38 m2
Swimming pool – 10.38 m2
Machinery room – 3.13 m2
WC – 1.30 m2
Kitchen – 3.33 m2
Location: Povljana, Island of Pag
Approx. 800 m from the sea
Quiet location, ideal for holidays and tourist rental
For more information and viewings, feel free to contact us.
... show all
- Basic information
- New building
- Property area: 49.8 m2
- Number of rooms: 2.0
- Bathrooms number: 1
- Orientation: North,South,East,West
- Energy class: In preparation
- Infrastructure:
- Water
- Sewage
- Air conditioner
- Additional information:
- State: preserved
- Basement:
- Garage
- Parking spaces: 1
- Elevator
- Location
- Country: Hrvatska
- Region: Zadarska županija
- Municipality: Povljana, 23249
- Settlement: Povljana
- Location view on the map
- Permits
- Building permit
- Similar listings
- Apartment - New building - Povljana - 46 m2 - 350,000 EUR
- Apartment - Povljana - 51 m2 - 178,000 EUR
- Apartment - New building - Povljana (Povljana) - 45 m2 - 185,000 EUR
- Apartment - New building - Povljana (Povljana) - 52 m2 - 239,000 EUR
- Apartment - New building - Povljana - 50 m2 - 193,500 EUR
Adria Team Real Estate d.o.o.
Matije Gupca 40, 23000 Zadar
- All listings of this agency
- Agency web site
- Number in the register of intermediaries: 38/2017
Follow us on
Facebook
and
Instagram
for
the best real estate offers in the category Apartments
in city Povljana, Hrvatska
Navigation menu
Contact the advertiser
Contact the advertiser
Adria Team Real Estate d.o.o.
Matije Gupca 40, 23000 Zadar
- All listings of this agency
- Agency web site
- Number in the register of intermediaries: 38/2017











