ONE-STOREY AND MULTI-STOREY APARTMENTS IN RESIDENTIAL BUILDING, NEW CONSTRUCTION, 150 m FROM SEA - PRIVLAKA
Hrvatska, Zadarska županija, Privlaka, Privlaka,
APARTMENTS for sale in a residential building under construction in Privlaka. The property covers the ground floor, 1st and 2nd floor.
PROPERTY DESCRIPTION:
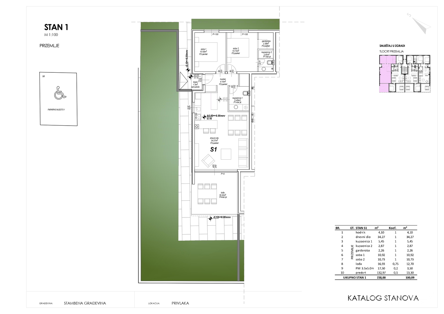
GROUND FLOOR - S1 (hallway, living room, 2 bathrooms, wardrobe, 2 bedrooms, loggia, front ga
rden) - 100.09 m2 - 350,315.00 EUR
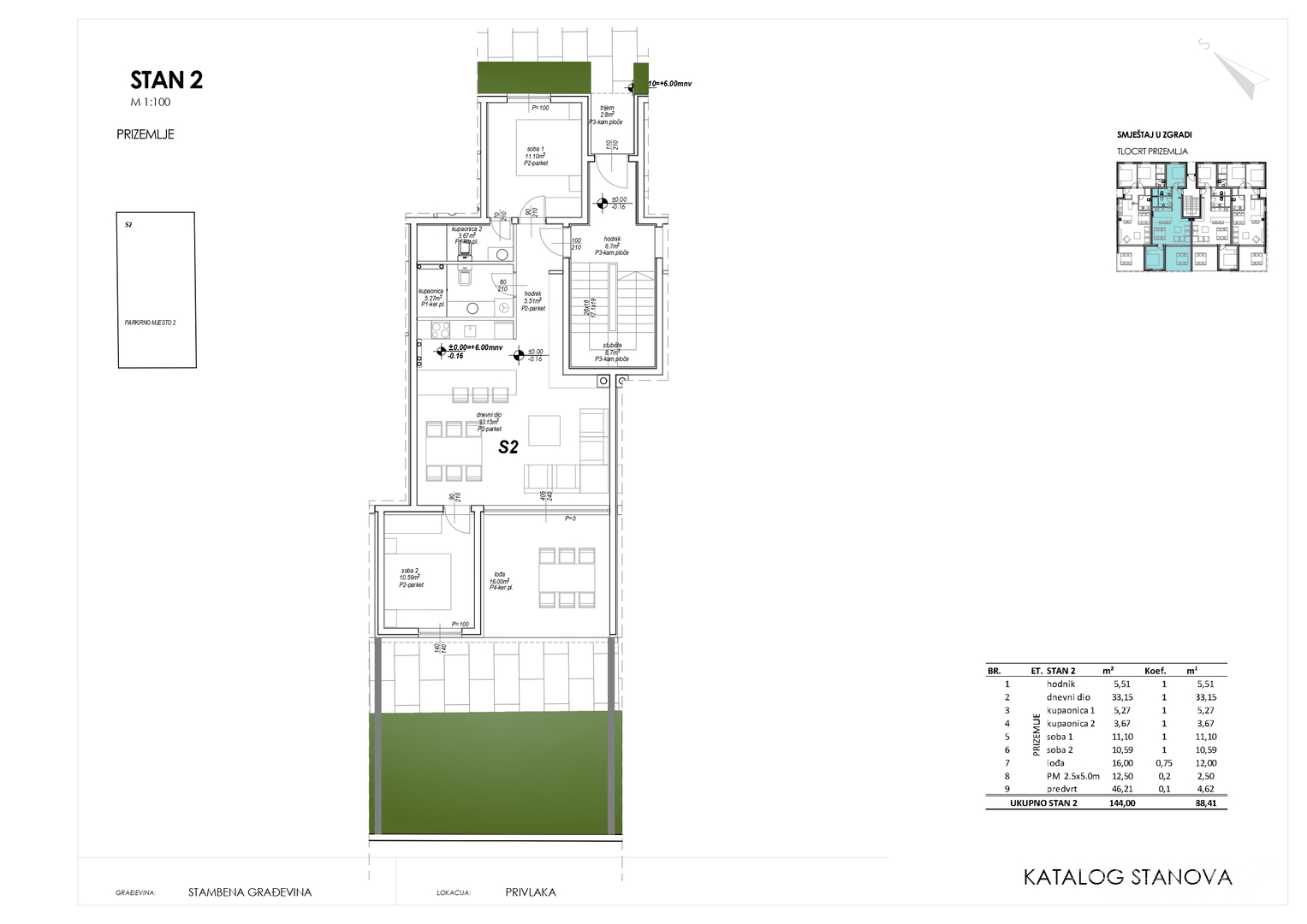
S2 (hallway, living room, 2 bathrooms, 2 bedrooms, loggia, front garden) - 88.41 m2 - 309,435.00 EUR
S3 (hallway, living room, 2 bathrooms, 2 bedrooms, loggia, front garden) - 87.86 m2 - 307,510.00 EUR
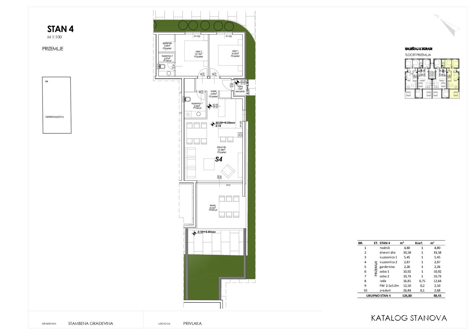
S4 (hallway, living room, 2 bathrooms, wardrobe, 2 bedrooms, loggia, front garden) - 88.43 m2 - 309,505.00 EUR
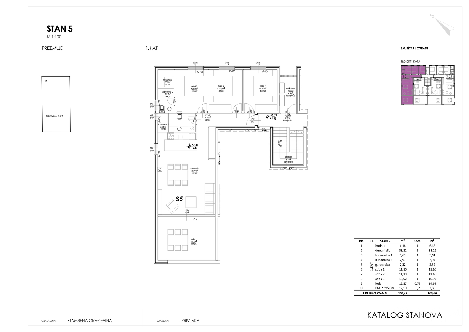
1ST FLOOR - S5 (hallway, living room, 2 bathrooms, wardrobe, 3 bedrooms, loggia) - 105.60 m2 - 369,600.00 EUR
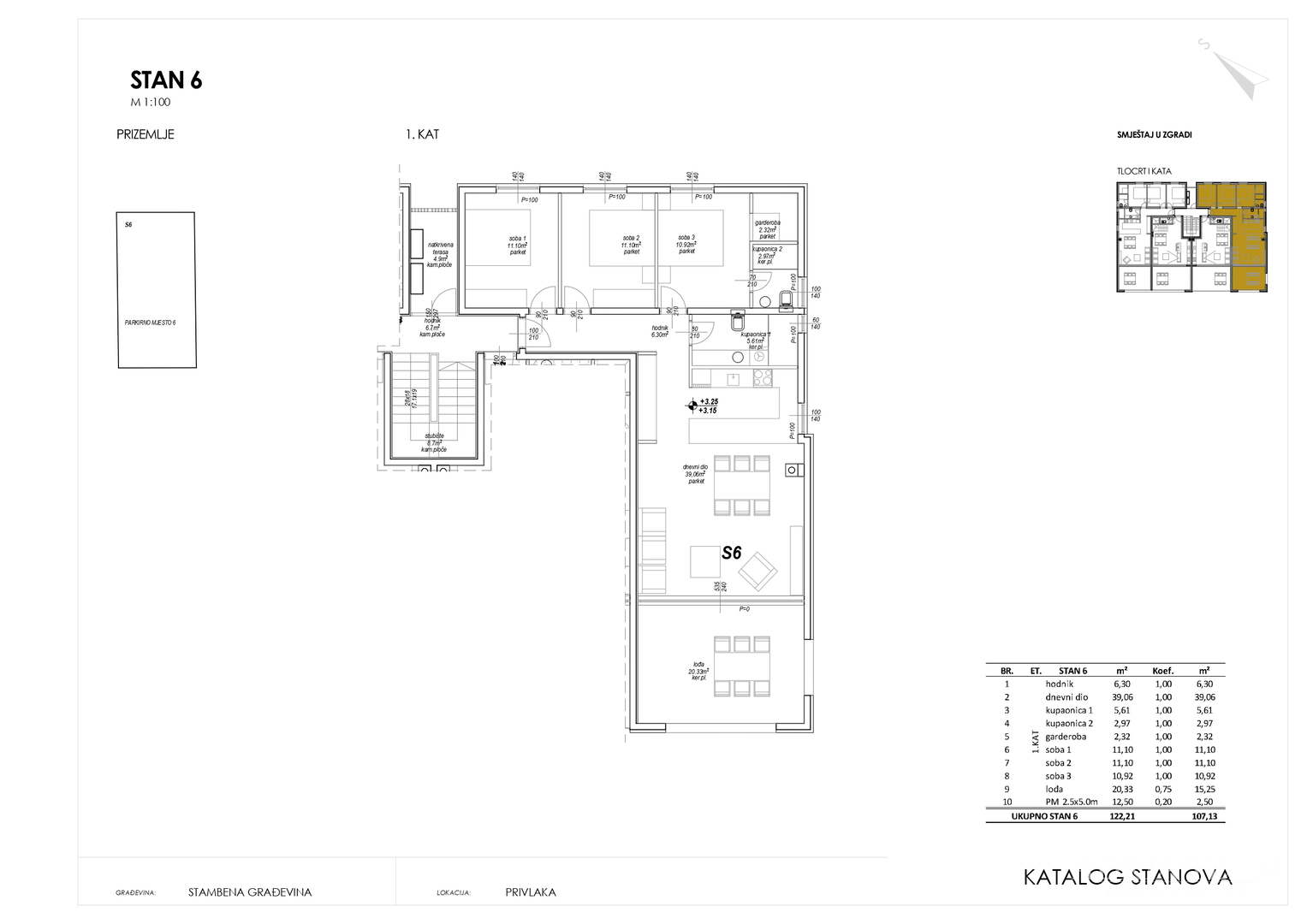
S6 (hallway, living room, 2 bathrooms, wardrobe, 3 bedrooms, loggia) - 107.13 m2 - 374,955.00 EUR
MULTI-STOREY APARTMENT - 1st floor/2nd floor/roof terrace -
S7 - 1st floor - hallway, toilet, living room, loggia;
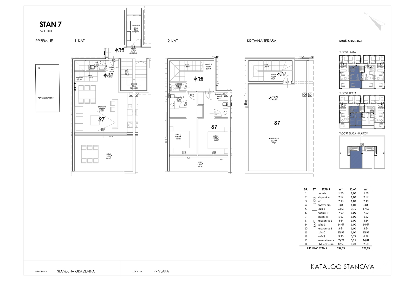
2nd floor/roof terrace - hallway, laundry room, 2 bathrooms, 2 bedrooms, loggia and roof terrace - 130.01 m2 - 455,035.00 EUR
S8 - 1st floor - hallway, toilet, living room, loggia;
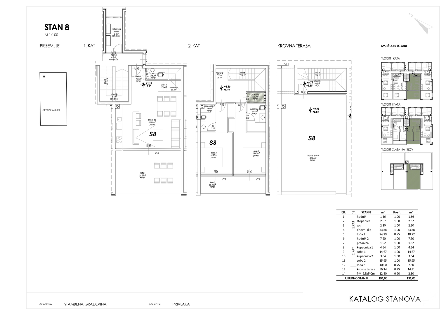
2nd floor/roof terrace - hallway, laundry room, 2 bathrooms, 2 bedrooms, loggia and roof terrace - 131.06 m2 - 458,710.00 EUR
2ND FLOOR/ROOF TERRACE
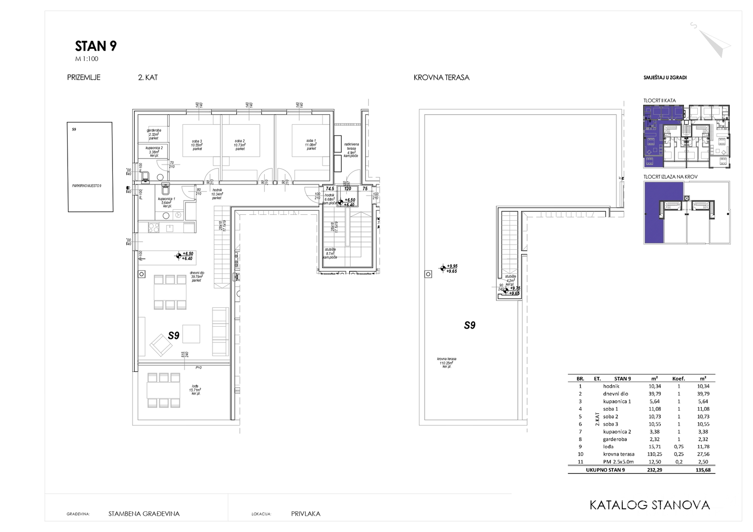
S9 - hallway, living room, 2 bathrooms, 3 bedrooms, wardrobe, loggia, roof terrace - 135.68 m2 - 474,880.00 EUR
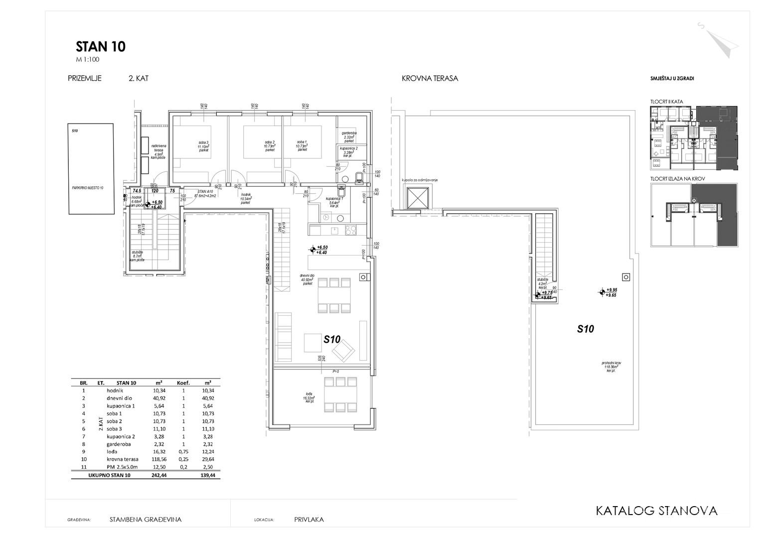
S10 - hallway, living room, 2 bathrooms, 3 bedrooms, wardrobe, loggia, roof terrace - 139.44 m2 - 488,040.00 EUR
- each apartment has one parking space;
- water and electricity for the summer kitchen and connections for the jacuzzi on the roof terraces
Construction will begin in the fall of 2024 and it will be completed in late 2025 or early 2026.
MATERIAL DESCRIPTION:
- reinforced concrete structure;
- styrofoam insulation 10 cm;
- underfloor heating (bathrooms and living room);
- air-conditioned;
- chimney in the kitchen;
- parquet floors in bedrooms, ceramics in other rooms;
- ALU carpentry;
- electric window lifters
For any additional information about the property and to arrange a tour, feel free to contact us at any time with confidence.
... show all
- Basic information
- New building
- Property area: 87.9 m2
- Number of rooms: 3.0
- Bathrooms number: 2
- Energy class: In preparation
- Lot size: 40 m2
- Infrastructure:
- Water
- Air conditioner
- Additional information:
- State: preserved
- Parking spaces: 10
- Location
- Country: Hrvatska
- Region: Zadarska županija
- Municipality: Privlaka, 23233
- Settlement: Privlaka
- Location view on the map
- Permits
- Certificate of ownership
- Similar listings
- Apartment - New building - Privlaka (Privlaka) - 94 m2 - 325,000 EUR
- Apartment - New building - Privlaka (Privlaka) - 87 m2 - 310,000 EUR
- Apartment - New building - Privlaka (Privlaka) - 94 m2 - 440,000 EUR
- Apartment - New building - Privlaka (Privlaka) - 94 m2 - 520,000 EUR
- Apartment - New building - Privlaka (Privlaka) - 81 m2 - 327,920 EUR
Adria Team Real Estate d.o.o.
Matije Gupca 40, 23000 Zadar
- All listings of this agency
- Agency web site
- Number in the register of intermediaries: 38/2017
Follow us on
Facebook
and
Instagram
for
the best real estate offers in the category Apartments
in city Privlaka, Hrvatska
Navigation menu
Contact the advertiser
Contact the advertiser
Adria Team Real Estate d.o.o.
Matije Gupca 40, 23000 Zadar
- All listings of this agency
- Agency web site
- Number in the register of intermediaries: 38/2017

























