City of Krk, wider area, building land 828m2, building permit, sea view, for sale
Hrvatska, Primorsko-goranska županija, Krk, Pinezići,
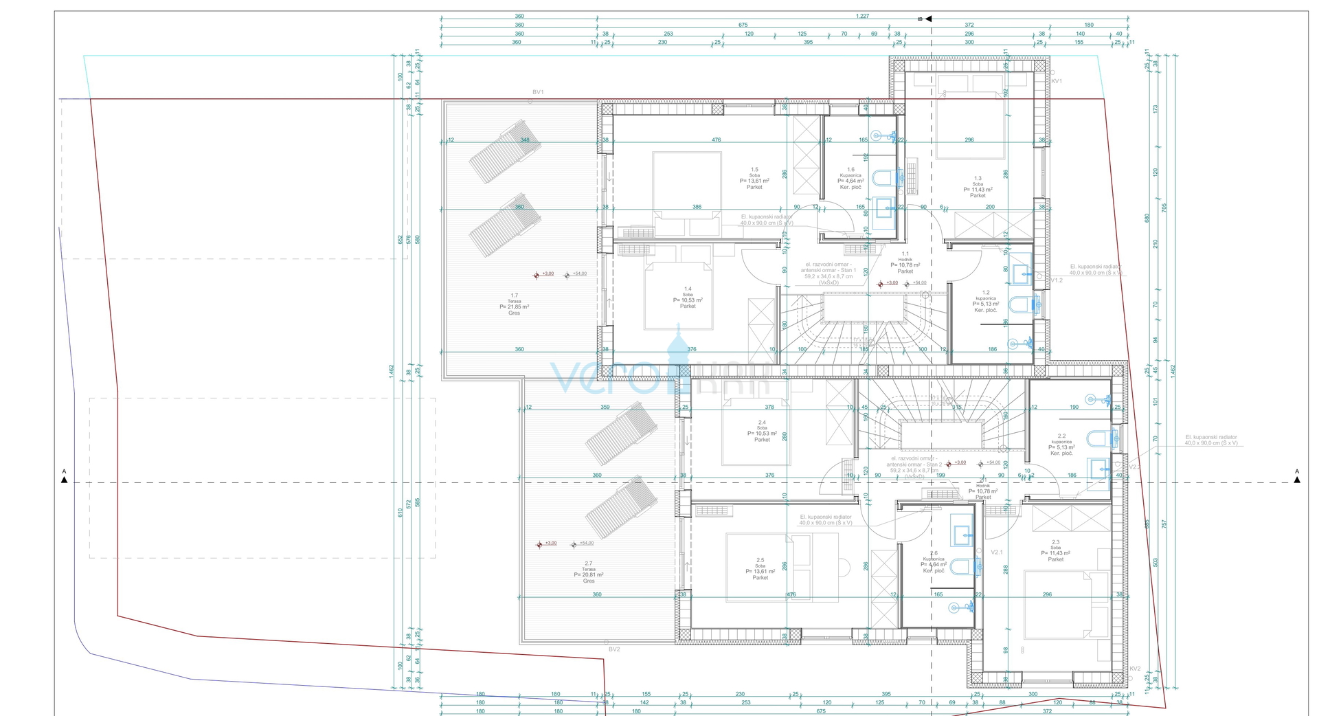
City of Krk, wider surroundings, building land with a building permit, in an excellent location with a permanent view and westward orientation. The construction of two semi-detached houses is planned. Each semi-detached house has approximately 133 m2
, spread over the ground floor and first floor; the ground floor includes a living area with kitchen and dining room, a WC, utility room, and terrace, while the first floor has three bedrooms and two bathrooms. From the first floor, there is a beautiful permanent view of the sea and surroundings. The sea is 400 meters as the crow flies, or approximately 650 meters to the beach.
The price of this property includes cleared and landscaped land, a completed project with an issued building permit for two semi-detached houses with swimming pools, 87% of the utility contribution paid, and 100% of the electricity connection paid.
A very valuable property due to the specificity of the location and environment, which has high value.
... show all
- Basic information
- Land type: Building land
- Property area: 828.0 m2
- Additional information:
- State: preserved
- Location
- Country: Hrvatska
- Region: Primorsko-goranska županija
- Municipality: Krk, 51500
- Settlement: Pinezići
- Location view on the map
- Permits
- Building permit
- Certificate of ownership
- Similar listings
- Land - Krk (Vrh) - Agricultural land - 809 m2 - 31,000 EUR
- Land - Krk (Krk) - Building land - 870 m2 - 180,000 EUR
- Land - Krk (Krk) - Agricultural land - 896 m2 - 32,500 EUR
- Land - Krk (Krk) - Building land - 767 m2 - 850,000 EUR
- Land - Krk (Krk) - Building land - 754 m2 - 508,950 EUR
Vero Krk j.d.o.o.
Put mora 2/1, 51513 Omišalj
- All listings of this agency
- Agency web site
- Number in the register of intermediaries: 193/2019
Follow us on
Facebook
and
Instagram
for
the best real estate offers in the category Land
in city Krk, Hrvatska
Navigation menu
Contact the advertiser
Contact the advertiser
Vero Krk j.d.o.o.
Put mora 2/1, 51513 Omišalj
- All listings of this agency
- Agency web site
- Number in the register of intermediaries: 193/2019






