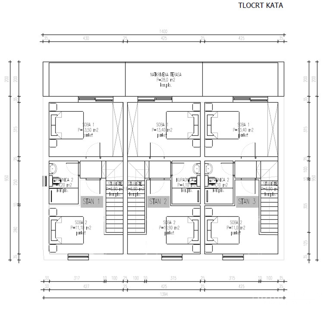
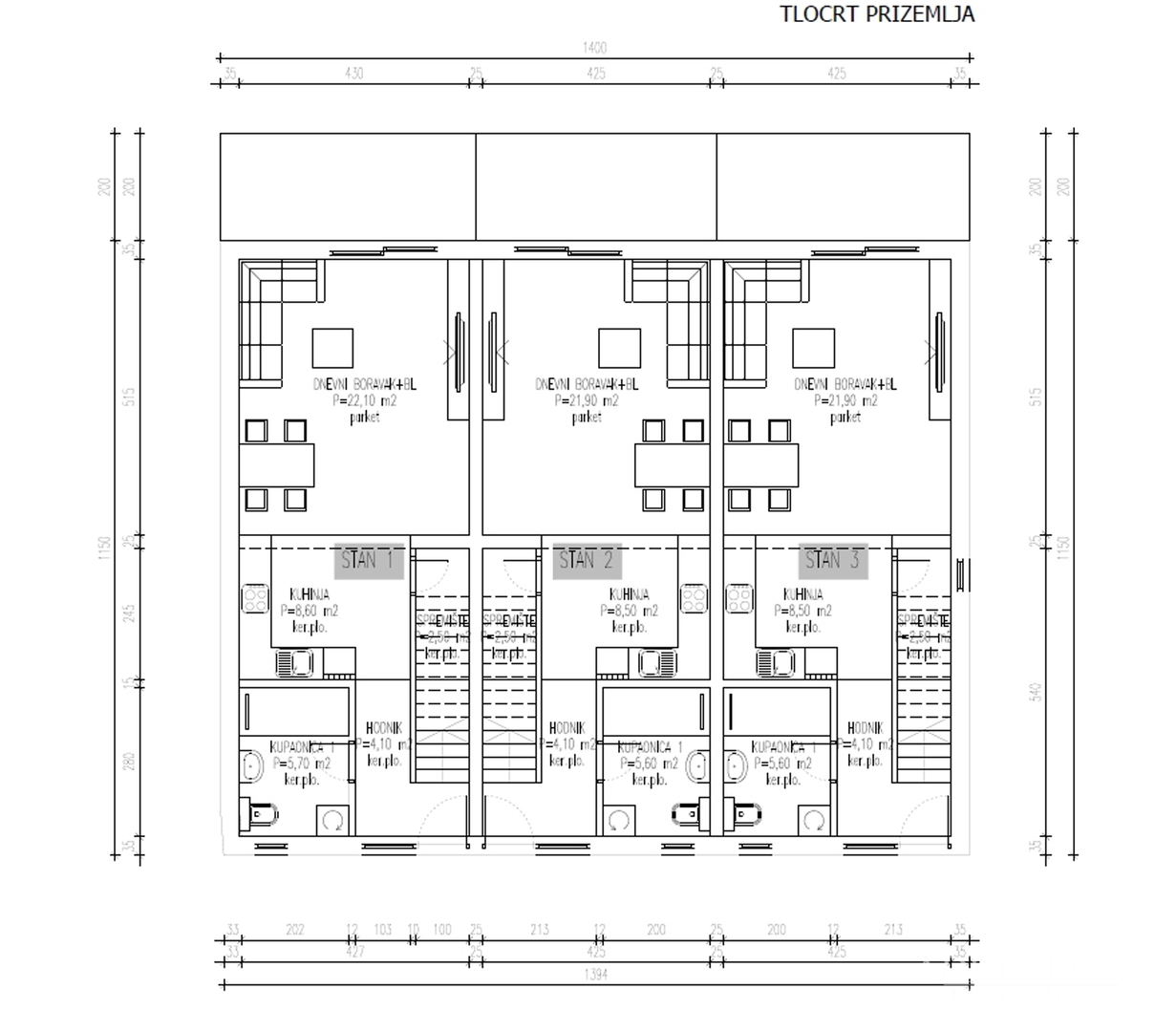
APARTMANI U STAMBENIM ZGRADAMA U IZGRADNJI, 70 m OD MORA - VIR, LAZ (JUŽNA STRANA)
Vir, Hrvatska
107m2
3
1
APARTMANI U STAMBENOJ ZGRADI S VRTOM, MIRNA I TIHA POZICIJA, POSEDARJE - ZADAR
Posedarje, Hrvatska
34m2
1
1
STUDIO APARTMAN, IZVRSNA PRILIKA ZA POSLOVNI ILI STAMBENI PROSTOR - STANOVI, ZADAR
Zadar, Hrvatska
43m2
1

