KUĆA, PRODAJA, ZAGREB, TRNJE, KRUGE, 57 m2
Hrvatska, Grad Zagreb, Zagreb, Kruge,
-
57
-
3
-
1
-
125.000 EUR stambeni kredit
KUĆA, PRODAJA, ZAGREB, TRNJE, KRUGE, 57 m2
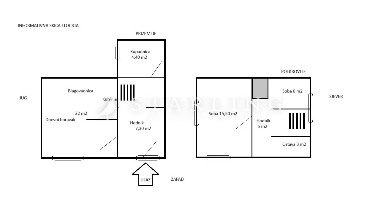
Prodaje se dvojna kuća površine 57 m2. Kuća je građena 1960-ih. godina.
Nalazi se na parceli površine 130 m2, od kojih je tlocrtno površine 61 m2.
Kuća se sastoji od prizemlja i potkrovlja.
U prizemlju se nalazi dnevni boravak s blagovaonicom i kuhinjom, kupaonica i hodnik, a u potkrovlju su dvije sobe, hodnik i ostava.
Uz kuću se nalazi terasa cca 15 m2 i jedno parkirno mjesto.
Nova vanjska stolarija mijenjana je 2024. godine.
Nalazi se na području Kruga koje obiluje mirnijim ulicama idealnim za obiteljski život, a opet na svega par minuta od javnog prijevoza, trgovina, škola i drugih bitnih sadržaja.
Kupnja isključivo gotovinom.
Orijentacija: S – I
Visina stropa: 2,10 m/2,55 m
Grijanje: grijalice i radijatori na struju
Parking: u dvorištu
Cijena: 125.000 EUR
ID KOD AGENCIJE: 7898
Prodaje se dvojna kuća površine 57 m2. Kuća je građena 1960-ih. godina.
Nalazi se na parceli površine 130 m2, od kojih je tlocrtno površine 61 m2.
Kuća se sastoji od prizemlja i potkrovlja.
U prizemlju se nalazi dnevni boravak s blagovaonicom i kuhinjom, kupaonica i hodnik, a u potkrovlju su dvije sobe, hodnik i ostava.
Uz kuću se nalazi terasa cca 15 m2 i jedno parkirno mjesto.
Nova vanjska stolarija mijenjana je 2024. godine.
Nalazi se na području Kruga koje obiluje mirnijim ulicama idealnim za obiteljski život, a opet na svega par minuta od javnog prijevoza, trgovina, škola i drugih bitnih sadržaja.
Kupnja isključivo gotovinom.
Orijentacija: S – I
Visina stropa: 2,10 m/2,55 m
Grijanje: grijalice i radijatori na struju
Parking: u dvorištu
Cijena: 125.000 EUR
ID KOD AGENCIJE: 7898
- Osnovni podaci
- Tip kuće: dvojnica
- Površina: 57,0 m2
- Broj soba: 3,0
- Broj kupatila: 1
- Energetski razred: U pripremi
- Dodatne informacije
- Broj parking mjesta: 1
- Lokacija
- Država: Hrvatska
- Regija: Grad Zagreb
- Općina: Zagreb, 10000
- Naselje: Kruge
- Pogledaj na mapi
- Slične nekretnine
- Kuća - dvojnica - Zagreb (Hrašće Turopoljsko) - 58 m2 - 104.000 EUR
- Kuća - dvojnica - Zagreb (Trnje) - 57 m2 - 192.000 EUR
- Kuća - samostojeća - Zagreb (Soblinec) - 58 m2 - 185.000 EUR
- Kuća - samostojeća - Zagreb (Adamovec) - 57 m2 - 69.000 EUR
- Kuća - samostojeća - Zagreb - 62 m2 - 114.000 EUR
Zainteresirani ste za ovu nekretninu?
Popunite KONTAKT OBRAZAC i naši agenti će Vas kontaktirati putem telefona ili e-maila u najkraćem mogućem roku.
Kontaktirajte nas
Zapratite nas na
Facebook-u
i
Instagramu
za
najbolje ponude nekretnina u kategoriji Kuće
u mjestu Zagreb, Hrvatska
Navigacija
Kontaktirajte oglašivača
Kontaktirajte oglašivača
Starling d.o.o.
Prilaz Gjure Deželića 75/1, 10000 Zagreb
- Tel. agenta: xxxx-xxxx-5244 Prikaži broj
- Tel: xxxx-xxxx-2310 Prikaži broj
-
Licencirani posrednik
- Broj u registru posrednika: 3/2019