LUKSUZNI APARTMANI NA SAMOJ PLAŽI
Hrvatska, Šibensko-kninska županija, Šibenik, Žaborić,
- 69 m2
- 3
- 1
- 285.000 EUR stambeni kredit
Nudimo na prodaju mali kompleks luksuznih apartmana, koji se sastoji od 5 kaskadnih poluotvorenih objekata, arhitektonski dizajniranih za dnevni boravak na plaži.
Svaka zgrada ima 5 prostranih apartmana s prekrasnim pogledom na more i kao što ime s
ugerira, svaki apartman prema obali i plaži za za uživanje.
Rezidencijski kompleks nalazi se u mirnom primorskom mjestu Žaborić, južno od Šibenika (Srednja Dalmacija).
Značajke i Opremljenost
Koncept u stvaranju prebivališta na plaži je stvaranje prostranog, visokokvalitetnog, tehnološki pametnog i životnog okruženja koji pruža maksimalnu privatnost i sigurnost. Uzimajući u obzir život uz more, vjerujemo da smo svojim klijentima stvorili jedinstvenu i ekskluzivnu priliku za uživanje u plaži i moru te naravno neprekinuti pogled na more, okolne otoke i romantične zalaske sunca.
Svaka poluotvorena zgrada sastoji se od 5 apartmana od kojih svaki ima 2 - 3 spavaće sobe, zasebne dnevne i blagovaonice, visoku kuhinju s konceptom prostranih interaktivnih dnevnih površina i tihim udobnim prostorima za spavanje.
Apartmani su potpuno prilagođeni (integrirani hlađenje i grijanje), a njihove veličine kreću se od 88m2 do 176m2, ovisno o željenoj konfiguraciji, svaki je opremljen s najmanje dvije kupaonice, izgrađene u spremištu i gostinjskim wc-om.
S jedinstvenim luksuznim stanjem na plaži svaki je apartman dizajniran s prostranom terasom / loggiom s prekrasnim pogledom na more i otoke koja nadahnjuje življenje iznutra / izvana.
Apartmani u prizemlju imaju izravan pristup privatnim vrtovima s osiguranim izravnim pristupom na plažu.
S obzirom na sigurnost i privatnost, zgrada je projektirana s podzemnim parkingom koji ima osiguran i ekskluzivan pristup stanovnicima. Svaki apartman ima dodijeljeno parkirno mjesto i osigurani prostor za odlaganje smješten ispod zemlje. Skladišni prostori su dizajnirani tako da pružaju dovoljno mjesta za vaš pribor (kajak, daske za jedrenje, bicikli). Iako je za svaki apartman raspoređeno parkirno mjesto, na zahtjev osiguravamo parkirališni prostor koji se može koristiti za drugo vozilo, brod ili skladište za Jet Ski.
Lokacija
Luksuzni apartmani se nalaze u Žaboriću, mirnom turističkom mjestu na samo 9 km od povijesnog grada Šibenika koji je smješten između Zadra prema sjeveru i Splitskog juga.
Područje je poznato po čistim, prirodnim, pješčanim i šljunčanim plažama, kao i kristalno bistrom moru.
Duga šetnica slijedi obalu Žaborića gdje možete uživati u 6 km prekrasnih plaža i zalasku sunca u večernjim satima.
Prilaz u more je plitak i blago se produbljuje čineći je idealnom plažom za djecu i ozbiljnije plivače. Idilična pozicija u maloj uvali daje neometan pogled na prostrane otoke.
Ljubitelji rekreacije mogu uživati u jet skijanju, biciklizmu, odbojci na pijesku, tenisu, stolnom tenisu, kuglanju, jedrenju, kao i brojnim drugim aktivnostima.
Na samo 3-4 minute hoda od centra grada, naći ćete restorane i kafe, kao i praktične trgovine za dnevne potrepštine.
Nekih 20 minuta šetnjom možete doći do druge uvale u gdje možete uživati u prirodnoj pješčanoj plaži i sadržajima kao što su restoran i kafići na plaži.
Ostali sadržaji unutar pješačka udaljenost uključuju trgovine, frizere, ljekarne i pošte.
Sveobuhvatni sadržaji i povijesne znamenitosti UNESCO-a mogu se naći u gradu Šibeniku koji je udaljen oko 9 km od objekta.
Osim toga, Residence se nalazi u blizini tri nacionalna parka (Nacionalni park Krka, Nacionalni park Kornati i Nacionalni park Plitvice).
Za ljubitelje plovidbe Šibenik ima jednu od najvećih i najnovijih marina u Hrvatskoj.
OBJEKT A:
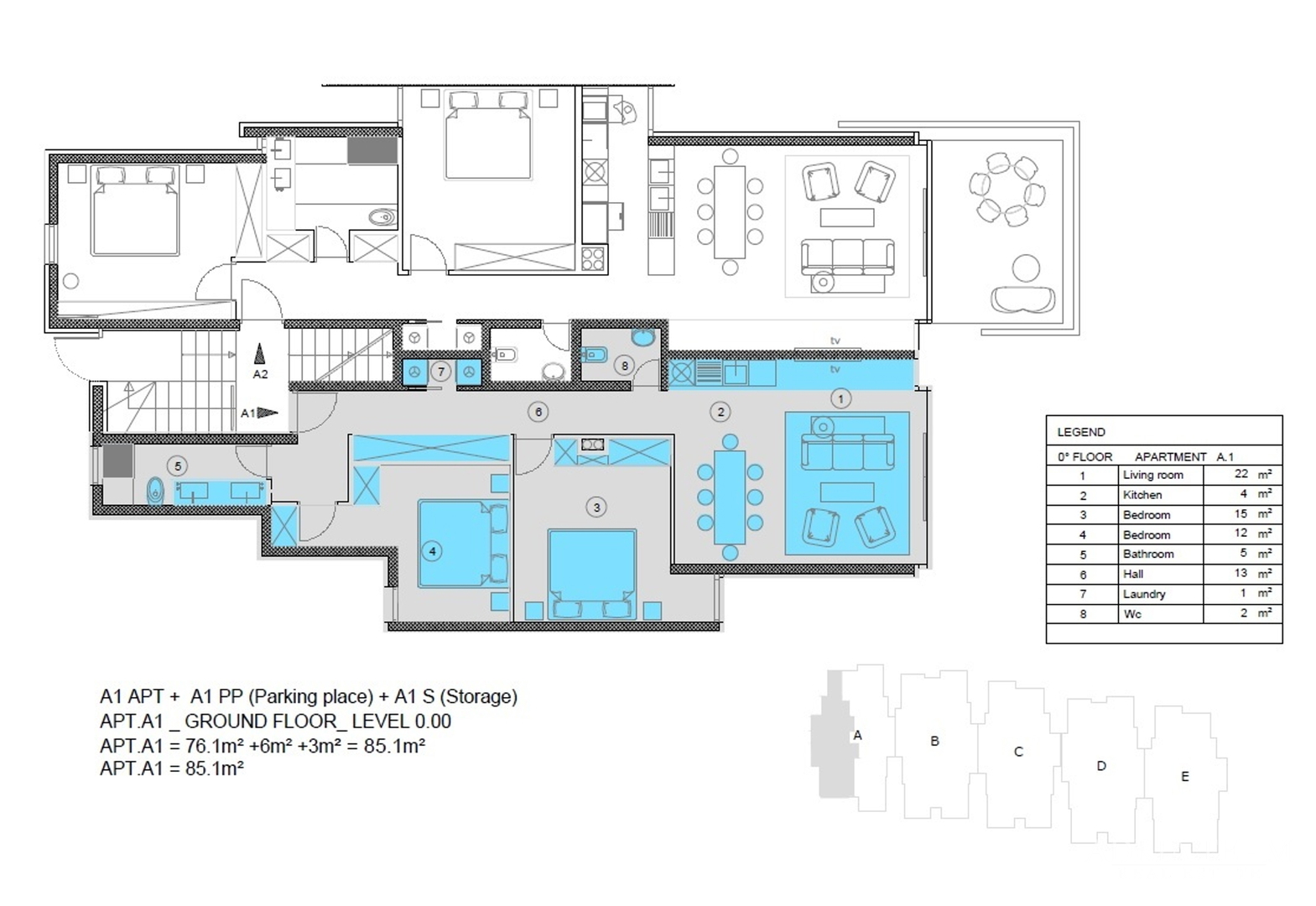
A1 (69,30 m2) - PRIZEMLJE - 305.000,-€
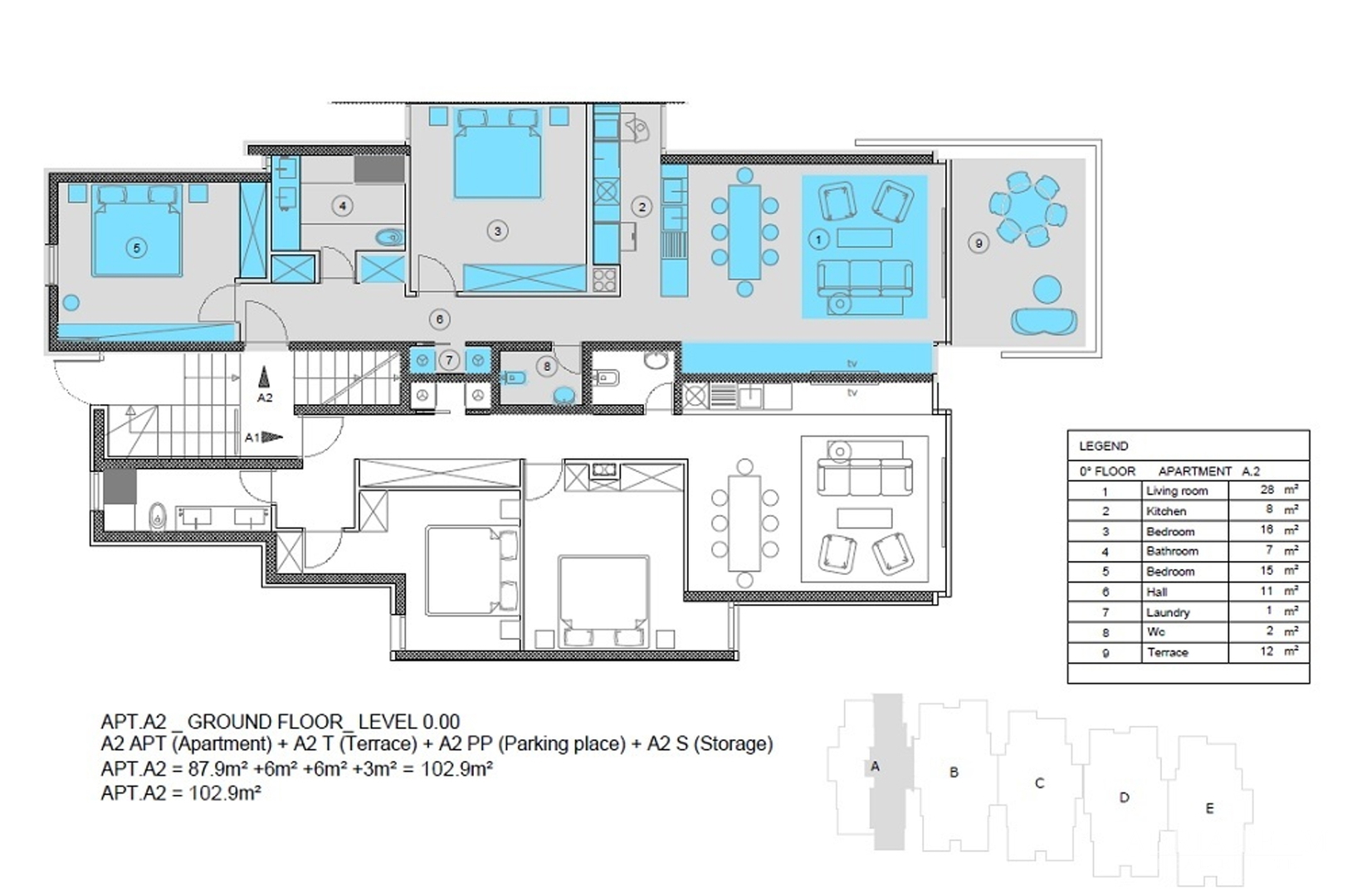
A2 (91 m2) - PRIZEMLJE - 400.000,-€
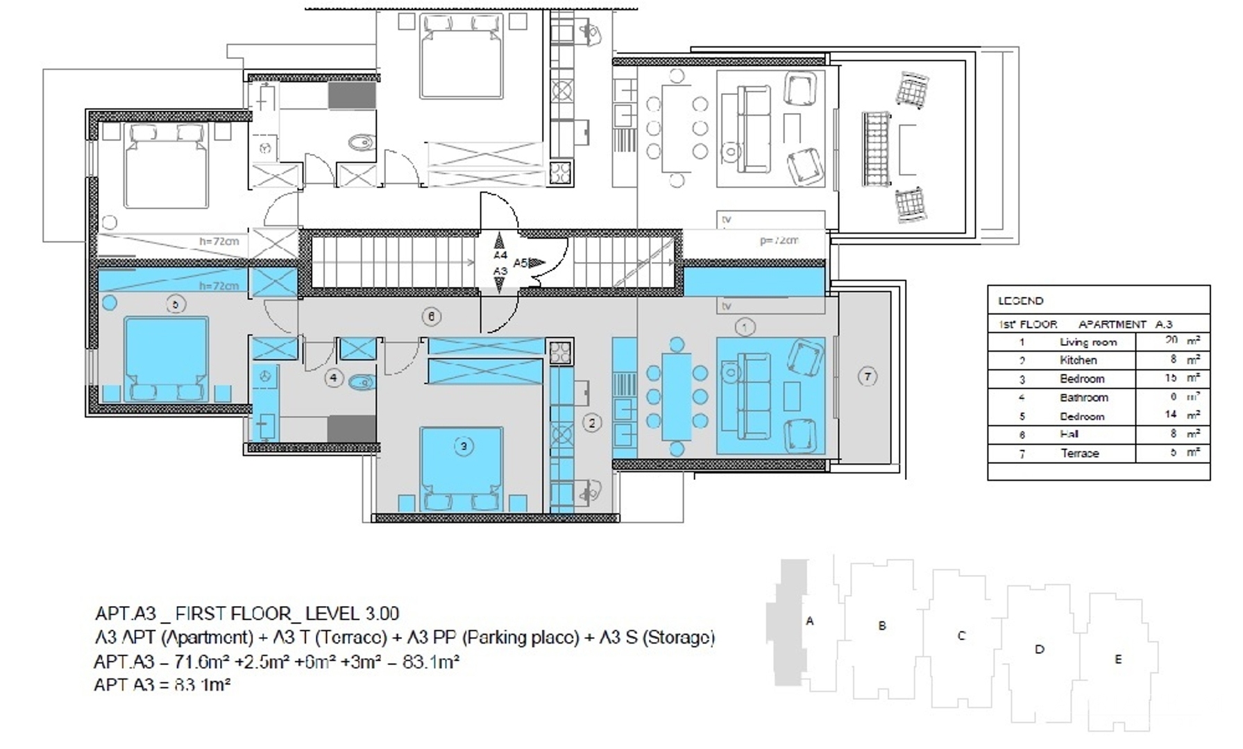
A3 (80,52 m2) - 1. KAT- 355.000,-€
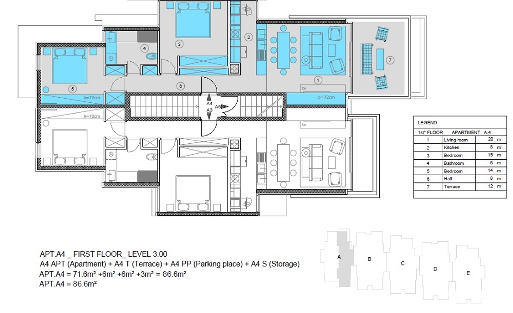
A4 (75,01 m2) - 1. KAT - 330.000,-€
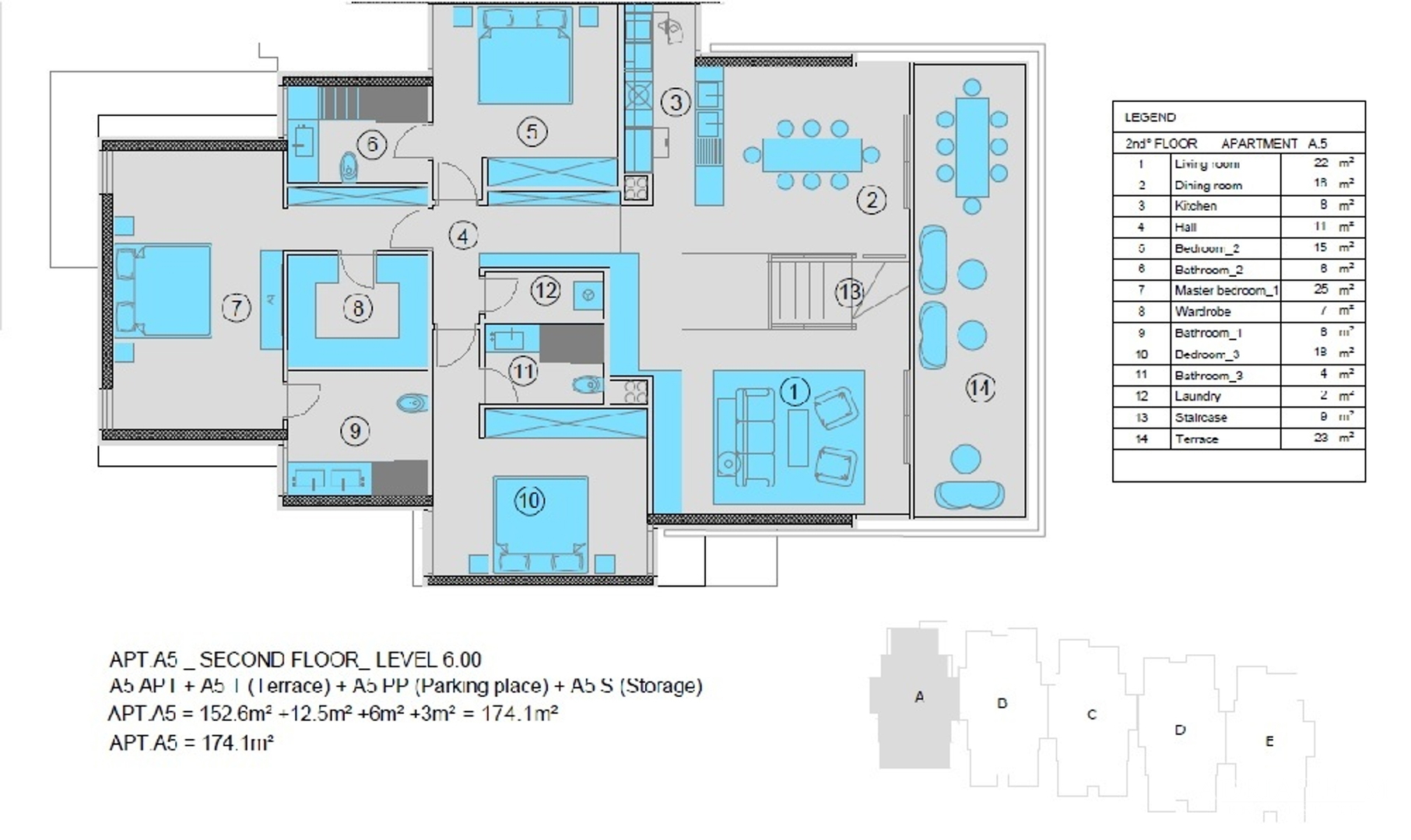
A5 (163,13 m2) - PENTHOUSE - 775.000,-€
OBJEKT B:
B1 (90,67m2) - PRIZEMLJE - 399.000,-€
B2 (95,44 m2) - PRIZEMLJE - 420.000,-€
B3 (82,20 m2) - 1. KAT- 362.000,-€
B4 (82,45 m2) - 1. KAT - 363.000,-€
B5 (170,04m2) - PENTHOUSE - 810.000,-€
OBJEKT C:
C1 (88,71m2) - PRIZEMLJE - 390.000,-€
C2 (93,86 m2) - PRIZEMLJE - 413.000,-€
C3 (78,64 m2) - 1. KAT- 346.000,-€ - PRODANO!
C4 (81,07 m2) - 1. KAT - 357.000,-€
C5 - PENTHOUSE - PRODANO!
OBJEKT D:
D1 (90,39m2) - PRIZEMLJE - 398.000,-€
OBJEKT E:
E1 - PRIZEMLJE (82,22 m2) - 362.000,-€
E2 - PRIZEMLJE(90,14 m2) - 396,000,-€ - REZERVIRAN!
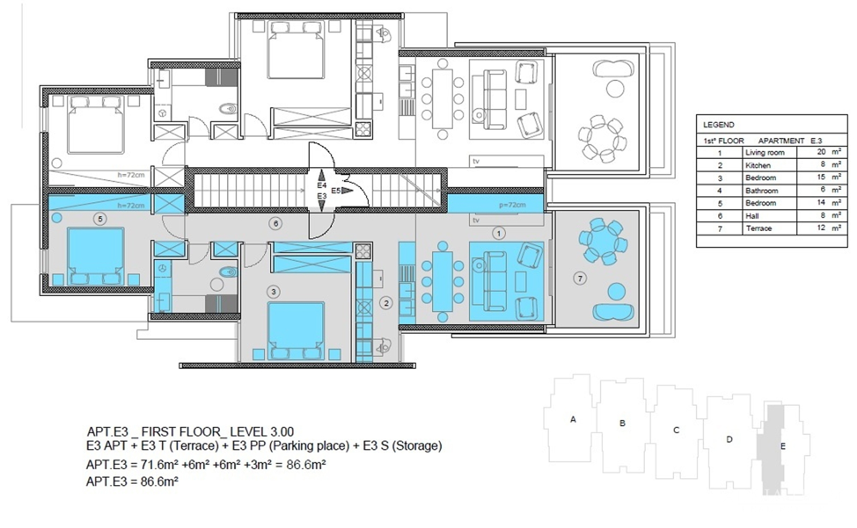
E3 - 1. KAT - (79,89 m2) - 340,000,-€ - PRODANO!
E4 - 1. KAT - (81,00 m2) - 345,000,-€ - PRODANO!
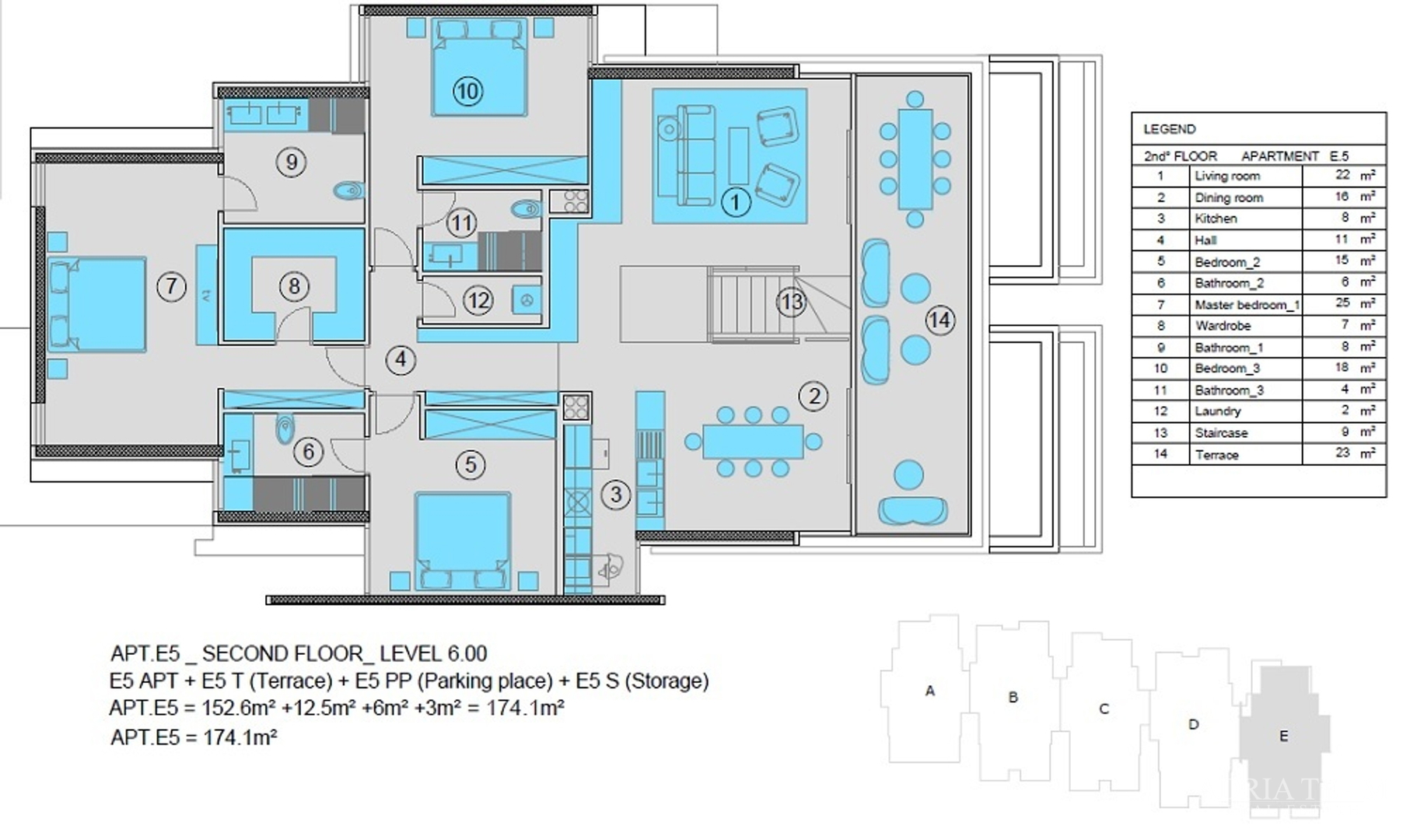
E5 - PENTHOUSE - (165,94 m2) - 745.000,00 -€ - PRODANO!
... prikaži sve
- Osnovni podaci
- Novogradnja
- Površina: 69,3 m2
- Broj soba: 3,0
- Broj kupatila: 1
- Sprat: 1
- Energetski razred: U pripremi
- Infrastruktura
- Voda
- Aktivna telefonska linija
- Telefonska instalacija
- Septička jama
- Klima uređaj
- Dodatne informacije
- Stanje: očuvano
- Lokacija
- Država: Hrvatska
- Regija: Šibensko-kninska županija
- Općina: Šibenik, 22000
- Naselje: Žaborić
- Pogledaj na mapi
- Dozvole
- Građevinska dozvola
- Vlasnički list
Adria Team Real Estate d.o.o.
Matije Gupca 40, 23000 Zadar
- Svi oglasi ove agencije
- Web site agencije
- Broj u registru posrednika: 38/2017
Zapratite nas na
Facebook-u
i
Instagramu
za
najbolje ponude nekretnina u kategoriji Stanovi
u mjestu Šibenik, Hrvatska
Navigacija
Kontaktirajte oglašivača
Kontaktirajte oglašivača
Adria Team Real Estate d.o.o.
Matije Gupca 40, 23000 Zadar
- Tel. agenta: xxxx-xxxx-9967 Prikaži broj
- Tel: xxxx-xxxx-5880 Prikaži broj
- Mob: xxxx-xxxx-8355 Prikaži broj
- Svi oglasi ove agencije
- Web site agencije
- Broj u registru posrednika: 38/2017




























