Prodaja, Stan, Gruž, Gruž , 2s, 53m2
Hrvatska, Dubrovačko-neretvanska županija, Dubrovnik, Gruž,
- 53 m2
- 2
- 1
- 295.000 EUR stambeni kredit
Investicijska prilika: Stan s nevjerojatnim pogledom i rijetkim parkirnim mjestom u Dubrovniku
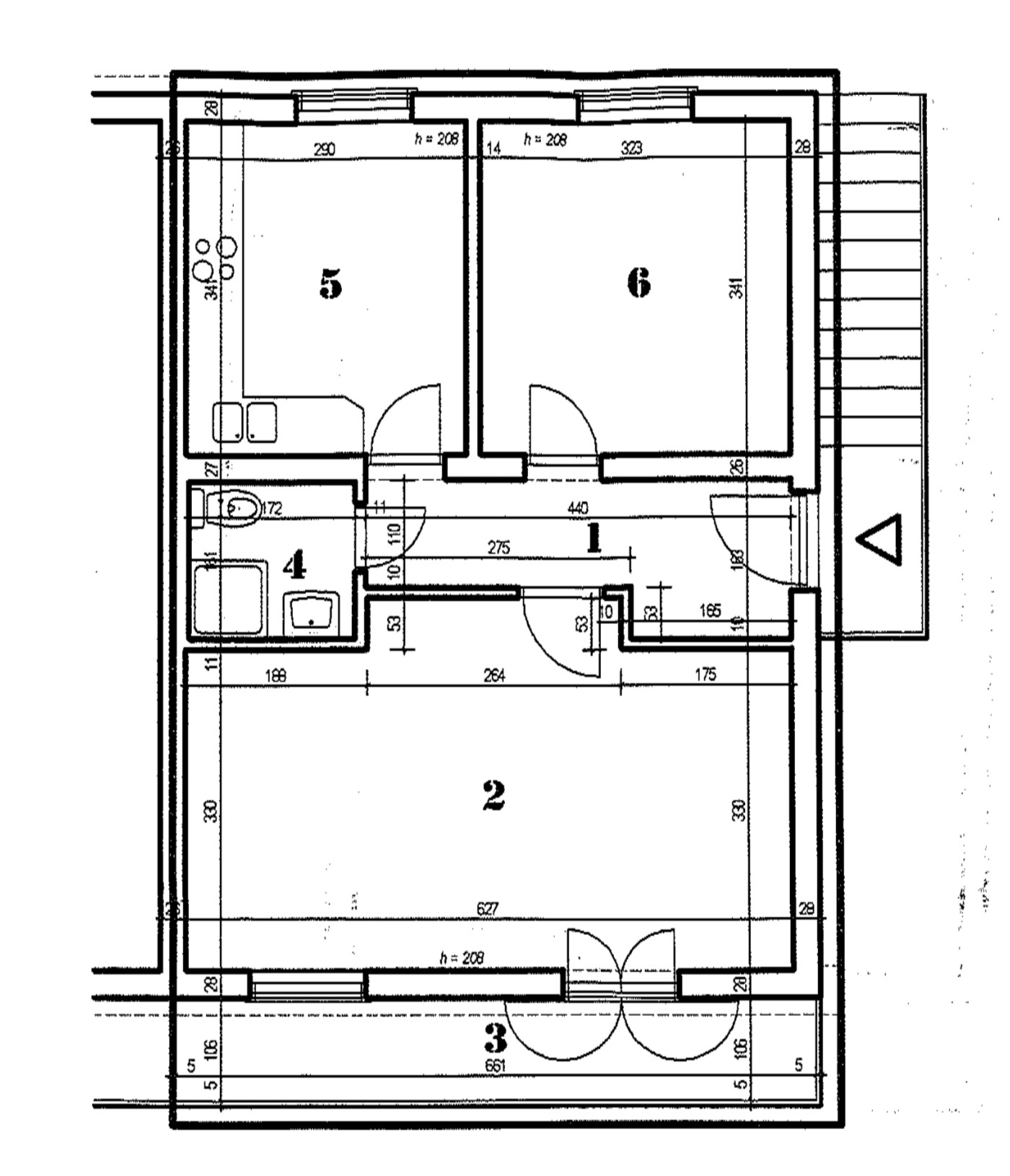
U prestižnom dijelu Dubrovnika, na atraktivnoj lokaciji ispod Jadranske magistrale, smjestio se stan površine 53,22 m². Ovaj stan predstavlja rijetku pril
iku za one koji traže udoban životni prostor u neposrednoj blizini povijesne jezgre grada, a istovremeno žele uživati u miru i privatnosti koje pruža ovaj dio grada.
Odličnog je rasporeda i osmišljen tako da maksimalno iskoristi svoj prostor.
Pri ulasku u stan, ulazi se u hodnik koji služi kao središnji dio prostora i vodi do svih ostalih prostorija.
Kupaonica se nalazi odmah na kraju hodnika, kompaktna i funkcionalna, opremljena svim potrebnim sanitarijama. S jedne strane hodnika nalazi se ulaz u prostrani dnevni boravak, koji je povezan s blagovaonicom i kuhinjom u jedan otvoreni, svijetli prostor. Ovaj dio stana idealan je za obiteljska
druženja ili opuštanje, a iz njega se izlazi na balkon s kojeg se pruža prekrasan pogled na Dubrovnik, more i okolne otoke.
Na suprotnoj strani hodnika smještene su dvije udobne spavaće sobe. Ove sobe pružaju potrebnu privatnost i mir, što ih čini savršenima za kvalitetan odmor ili kao radni prostor.
Stan je opremljen novim PVC vanjskim otvorima. Uredan i održavan, te je spreman za useljenje.
Nudi i rijetku prednost u Dubrovniku – vlastito parkirno mjesto, što osigurava bezbrižno parkiranje u dijelu grada gdje je parking često ograničen.
Prodaje se u viđenom stanju ili prazan, ovisno o dogovoru s budućim vlasnikom, što omogućava dodatnu fleksibilnost pri uređenju i prilagodbi prostora prema vlastitim željama i potrebama.
Lokacija stana omogućava brz pristup povijesnoj jezgri Dubrovnika, koja je pod zaštitom UNESCO-a, te nudi bogatu kulturnu baštinu, restorane, kafiće i butike. U blizini se nalaze i poznate plaže poput Banje i Bellevue, idealne za opuštanje i uživanje u kristalno čistom moru.
Ovaj stan je idealan za parove, obitelji, ali i za investitore koji traže nekretninu s visokim potencijalom za iznajmljivanje
... prikaži sve
- Osnovni podaci
- Površina: 53,2 m2
- Broj soba: 2,0
- Broj kupatila: 1
- Sprat: 2 od 2
- Energetski razred: Nema
- Dodatne informacije
- Stanje: u jako dobrom stanju
- Lokacija
- Država: Hrvatska
- Regija: Dubrovačko-neretvanska županija
- Općina: Dubrovnik, 20000
- Naselje: Gruž
- Gruž
- Pogledaj na mapi
- Dozvole
- Grijanje
- Tip grijanja: Klima uređaj

Opereta d.o.o.
Ulica grada Vukovara 20, 10000 Zagreb
- Svi oglasi ove agencije
- Web site agencije
- Broj u registru posrednika: 208/2009
Zapratite nas na
Facebook-u
i
Instagramu
za
najbolje ponude nekretnina u kategoriji Stanovi
u mjestu Dubrovnik, Hrvatska
Navigacija
Kontaktirajte oglašivača
Kontaktirajte oglašivača

Opereta d.o.o.
Ulica grada Vukovara 20, 10000 Zagreb
- Tel: xxxx-xxxx-0050 Prikaži broj
- Fax: xxxx-xxxx-4706 Prikaži broj
- Svi oglasi ove agencije
- Web site agencije
- Broj u registru posrednika: 208/2009