NOVI STANOVI – MODERNA GRADNJA, MIRNA LOKACIJA, POUZDAN INVESTITOR
Srbija, Centralna Srbija, Jagodina, Širi centar,
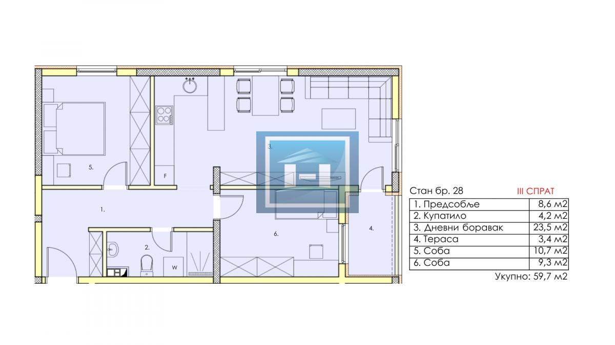
- 60 m2
- 3
- 80.595 EUR stambeni kredit
Započeta je izgradnja nove stambene zgrade koja objedinjuje moderan dizajn, funkcionalnost i udobnost savremenog života.
U ponudi su stanovi različitih struktura i kvadratura – od 31,6m² do 67,4m², idealni kako za mlade parove i pojedince, tako i za
porodice koje žele mir, sigurnost i kvalitetan dom.
Cena: 1.350 €/m² sa PDV-om
Parking mesto uključeno u cenu!
Mogućnost kupovine garažnog mesta u podrumu zgrade!
KVALITET I SIGURNOST KOJI SE OSEĆAJU
Gradnja se izvodi po najvišim standardima:
• Termo blok + stiropor izolacija 10cm – odlična toplotna i zvučna zaštita
• Podno grejanje – keramika na podovima za savršen komfor
• Grejanje na gas za stanove preko 50m², kotao na struju za manje stanove
• Ugrađen vodomer i visoka energetska efikasnost
• Klima uređaj u svakom stanu
• Lift u zgradi
• PVC stolarija vrhunskog kvaliteta i alu roletne sa elektro podizačima
LOKACIJA KOJA NUDI MIR I BLIZINU SVEGA
Zgrada se nalazi u mirnom delu grada, savršenom za porodičan život, a ipak na samo 500 metara od centra.
Bolnica, škole, marketi, apoteke, pošta i svi bitni sadržaji nalaze se u neposrednoj blizini – sve što vam je potrebno, dostupno je pešice.
ZAŠTO OVAJ PROJEKAT?
✔ Pouzdan investitor sa iskustvom
✔ Izuzetna energetska efikasnost i niski troškovi održavanja
✔ Parking mesto obezbeđeno uz svaki stan, osim za garsonjere
✔ Mogućnost kupovine garaže
✔ Savršena kombinacija kvaliteta, lokacije i cene
✔ Odlična investicija – i za život i za izdavanje
Useljenje po završetku radova, a rezervacije su već u toku!
Ne čekajte – rezervišite svoj novi dom na vreme!
064/8-312-063
065/8-222-441
035/8-222-441
... prikaži sve
- Osnovni podaci
- Novogradnja
- Površina: 59,7 m2
- Broj soba: 2,5
- Sprat: 3 od 5
- Dodatne informacije
- Stanje: u izgradnji
- Lift
- Lokacija
- Država: Srbija
- Regija: Centralna Srbija
- Općina: Jagodina, 35000
- Naselje: Širi centar
- Pogledaj na mapi
- Grijanje
- Tip grijanja: Plin
- Slične nekretnine
- Stan - Novogradnja - Jagodina (Širi centar) - 62 m2 - 84.240 EUR
- Stan - Jagodina (Širi centar) - 56 m2 - 58.000 EUR
- Stan - Novogradnja - Jagodina (Centar) - 62 m2 - 93.000 EUR
- Stan - Novogradnja - Jagodina (Vašarište) - 66 m2 - 85.019 EUR
- Stan - Novogradnja - Jagodina (Centar) - 65 m2 - 100.750 EUR
HEROLDO NEKRETNINE D.O.O., Jagodina
Kneginje Milice 74, None Jagodina
- Svi oglasi ove agencije
- Web site agencije
- Broj u registru posrednika: 022
Zapratite nas na
Facebook-u
i
Instagramu
za
najbolje ponude nekretnina u kategoriji Stanovi
u mjestu Jagodina, Srbija
Navigacija
Kontaktirajte oglašivača
Kontaktirajte oglašivača
HEROLDO NEKRETNINE D.O.O., Jagodina
Kneginje Milice 74, None Jagodina
- Tel: xxxx-xxxx-2441 Prikaži broj
- Mob: xxxx-xxxx-2441 Prikaži broj
- Svi oglasi ove agencije
- Web site agencije
- Broj u registru posrednika: 022
