Istra, Barban - Roh Bau vila s bazenom, 174m2, prodaja!
Hrvatska, Istarska županija, Barban, Barban,
- 174 m2
- 5
- 4
- 280.000 EUR stambeni kredit
Angelus nekretnine agencija koja se bavi posredovanjem pri prodaji vila u Istri, nudi Vam u prodaju ovu modernu vilu u Roh Bau fazi gradnje.
LOKACIJA:
Okolica Barbana u Istri obilježena je skladnim krajolikom brežuljaka, vinograda, maslinika i šu
ma koji se nadovezuju na dolinu rijeke Raše. Riječ je o području koje spaja mir tradicionalnog istarskog zaleđa s blizinom mora i važnijih turističkih središta. Barban je strateški smješten između Pule i Labina, pa tako nudi ravnotežu između seoskog ugođaja i dostupnosti urbanih sadržaja, plaža i kulturnih događanja.
Prometno je vrlo dobro povezan: glavna regionalna cesta omogućuje brz dolazak do Pule i zračne luke, dok se prema unutrašnjosti lako izlazi na istarski ipsilon. Zbog svega toga Barban pruža život u prirodnom i povijesnom ambijentu, ali s prednostima izvrsne pristupačnosti i praktičnosti za stanovnike i posjetitelje.
OPIS:
U mirnom zelenom okruženju istočne Istre, nedaleko od Barbana, nalazi se moderna vila u izgradnji – mjesto na kojem se priroda, suvremeni dizajn i osobni prostor susreću u savršenoj ravnoteži. Smještena na zemljištu od 670 m², ova vila katnica ukupne površine 174 m² već sada pokazuje sve kvalitete budućeg doma, a zahvaljujući roh-bau fazi postaje prilika kakva se rijetko nudi: kuća je konstruktivno završena, ali još uvijek dovoljno otvorena da novi vlasnik svojim izborima stvori prostor potpuno u skladu s vlastitim stilom, potrebama i vizijom.
Roh-bau faza ovdje je stvarna prednost. Omogućava da se bez ograničenja odaberu materijali, raspored detalja, završne obloge i atmosfera svakog dijela kuće. Bez rušenja, preinaka i dodatnih troškova – već od samog početka možete kreirati dom po mjeri, bilo da ga zamišljate kao obiteljsko utočište, luksuznu kuću za odmor ili pametnu investiciju u turistički potencijal Istre.
U prizemlju dominira svijetao dnevni boravak otvorenog koncepta koji se prirodno nadovezuje na kuhinju i blagovaonicu, stvarajući prostor za druženje i obiteljske trenutke. Također u prizemlju se nalazi jedna prostrana spavaća soba te kupaonica. Na katu su još tri spavaće sobe, svaka s vlastitom kupaonicom, što osigurava privatnost i komfor za svakog člana obitelji ili gosta. Jedna spavaća soba, ona manja se može koristiti kao radna soba, smještena pažljivo na suprotnoj strani od bazena – idealna za mir i koncentraciju. Iz dnevnih prostora izlazi se na polu-natkrivenu terasu koja povezuje unutrašnjost s bazenom, sunčalištem te poziva na druženja uz roštilj.
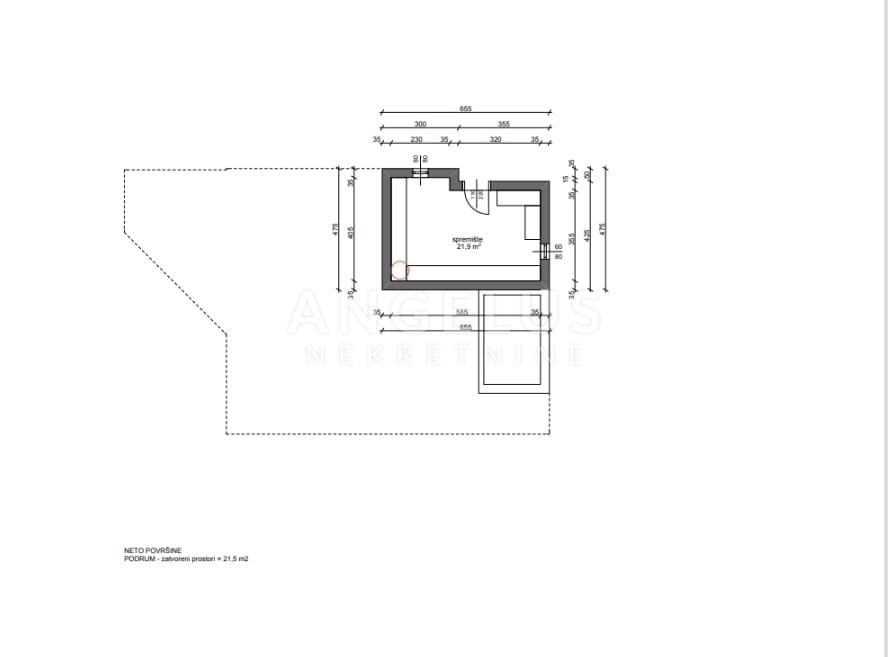
Okućnica je zamišljena kao privatna oaza: prostrano dvorište s bazenom, vrtom i prakingom, pomoćnim objektom s vanjskim WC-om i tušem te uređenim prostorom za odmor i zabavu tijekom toplih istarskih dana. Na raspolaganju je i podrum od 22 m² - idealan za pohranu nadaleko poznatih istarskih vina. Struja, voda i svi komunalni doprinosi već riješeni, što znatno pojednostavljuje završne faze uređenja.
Ova nekretnina nalazi se u općini Barban, području poznatom po jedinstvenom spoju tišine, prirodne ljepote i izvrsne prometne povezanosti. Udaljena od gradske vreve, ali dovoljno blizu svim ključnim sadržajima, predstavlja idealno mjesto za život ili odmaranje – tamo gdje Istra pokazuje svoje najautentičnije lice.
Za sva dodatna pitanja u vezi ove nekretnine kontaktirajte našeg agenta, a agencijska provizija se obračunava u skladu s Općim uvjetima poslovanja objavljenima na .
Vaše Angelus nekretnine d.o.o.
_____________
ENG:
Angelus real estate agency, which deals with the sale of villas in Istria, offers you for sale this modern villa in the Roh Bau phase of construction.
LOCATION:
The surroundings of Barban in Istria are characterized by a harmonious landscape of hills, vineyards, olive groves and forests that connect to the valley of the Raša River. It is an area that combines the peace of the traditional Istrian hinterland with the proximity of the sea and major tourist centers. Barban is strategically located between Pula and Labin, thus offering a balance between a rural atmosphere and the availability of urban amenities, beaches and cultural events.
It is very well connected: the main regional road allows quick access to Pula and the airport, while towards the interior there is easy access to the Istrian Y. Because of all this, Barban offers life in a natural and historical setting, but with the advantages of excellent accessibility and practicality for residents and visitors.
DESCRIPTION:
In the peaceful green surroundings of eastern Istria, not far from Barban, there is a modern villa under construction – a place where nature, contemporary design and personal space meet in perfect balance. Situated on a plot of 670 m², this two-storey villa with a total area of 174 m² already shows all the qualities of a future home, and thanks to the unfinished phase, it becomes an opportunity that is rarely offered: the house is structurally completed, but still open enough for the new owner to create a space completely in accordance with their own style, needs and vision.
The unfinished phase is a real advantage here. It allows for unlimited choice of materials, arrangement of details, finishes and the atmosphere of each part of the house. Without demolition, alterations and additional costs – you can create a tailor-made home from the very beginning, whether you imagine it as a family retreat, a luxury holiday home or a smart investment in the tourist potential of Istria.
The ground floor is dominated by a bright open-concept living room that naturally connects to the kitchen and dining room, creating a space for socializing and family moments. Also on the ground floor is one spacious bedroom and a bathroom. Upstairs are three more bedrooms, each with its own bathroom, ensuring privacy and comfort for each family member or guest. One bedroom, the smaller one, can be used as a study, carefully located on the opposite side of the pool - ideal for peace and concentration. The living areas lead out to a semi-covered terrace that connects the interior with the pool, sunbathing area and invites you to socialize around the barbecue.
The courtyard is designed as a private oasis: a spacious courtyard with a pool, garden and parking, an auxiliary building with an outdoor toilet and shower and a furnished area for relaxation and entertainment during warm Istrian days. There is also a 22 m² cellar available - ideal for storing famous Istrian wines. Electricity, water and all utility contributions have already been taken care of, which significantly simplifies the final stages of decoration.
This property is located in the municipality of Barban, an area known for its unique blend of silence, natural beauty and excellent transport connections. Away from the hustle and bustle of the city, but close enough to all key amenities, it is an ideal place to live or relax - where Istria shows its most authentic face.
For any additional questions regarding this property, please contact our agent, and the agency commission is calculated in accordance with the General Terms and Conditions published at .
Yours, Angelus nekretnine d.o.o.
ID KOD AGENCIJE: 6093
... prikaži sve
- Osnovni podaci
- Tip kuće: samostojeća
- Površina: 174,0 m2
- Broj soba: 5,0
- Broj kupatila: 4
- Površina okućnice: 570 m2
- Dodatne informacije
- Lokacija
- Država: Hrvatska
- Regija: Istarska županija
- Opština: Barban, 52207
- Naselje: Barban
- Pogledaj na karti
- Dozvole
- Građevinska dozvola
- Slične nekretnine
- Kuća - Novogradnja - Barban (Barban) - 157 m2 - 420.000 EUR
- Kuća - samostojeća - Barban (Barban) - 170 m2 - 660.000 EUR
- Kuća - samostojeća - Barban (Barban) - 185 m2 - 590.000 EUR
- Kuća - Novogradnja - Barban - 160 m2 - 550.000 EUR
- Kuća - samostojeća - Novogradnja - Barban (Barban) - 174 m2 - 280.000 EUR
Angelus nekretnine
Vlaška ulica 72, 10000 Zagreb
- Svi oglasi ove agencije
- Web site agencije
- Broj u registru posrednika: 109/2016
Zapratite nas na
Facebook-u
i
Instagramu
za
najbolje ponude nekretnina u kategoriji Kuće
u mjestu Barban, Hrvatska
Navigacija
Kontaktirajte oglašivača
Kontaktirajte oglašivača
Angelus nekretnine
Vlaška ulica 72, 10000 Zagreb
- Tel. agenta: xxxx-xxxx-6633 Prikaži broj
- Tel: xxxx-xxxx-2233 Prikaži broj
- Mob: xxxx-xxxx-6401 Prikaži broj
- Fax: xxxx-xxxx-6123 Prikaži broj
- Svi oglasi ove agencije
- Web site agencije
- Broj u registru posrednika: 109/2016




















