Rijeka, Kostrena, Samostojeća kuća sa dozvolom za gradnju katnice sa bazenom, prodaja
Hrvatska, Primorsko-goranska županija, Kostrena, Kostrena,
- 273 m2
- 4
- 2
- 270.000 EUR stambeni kredit
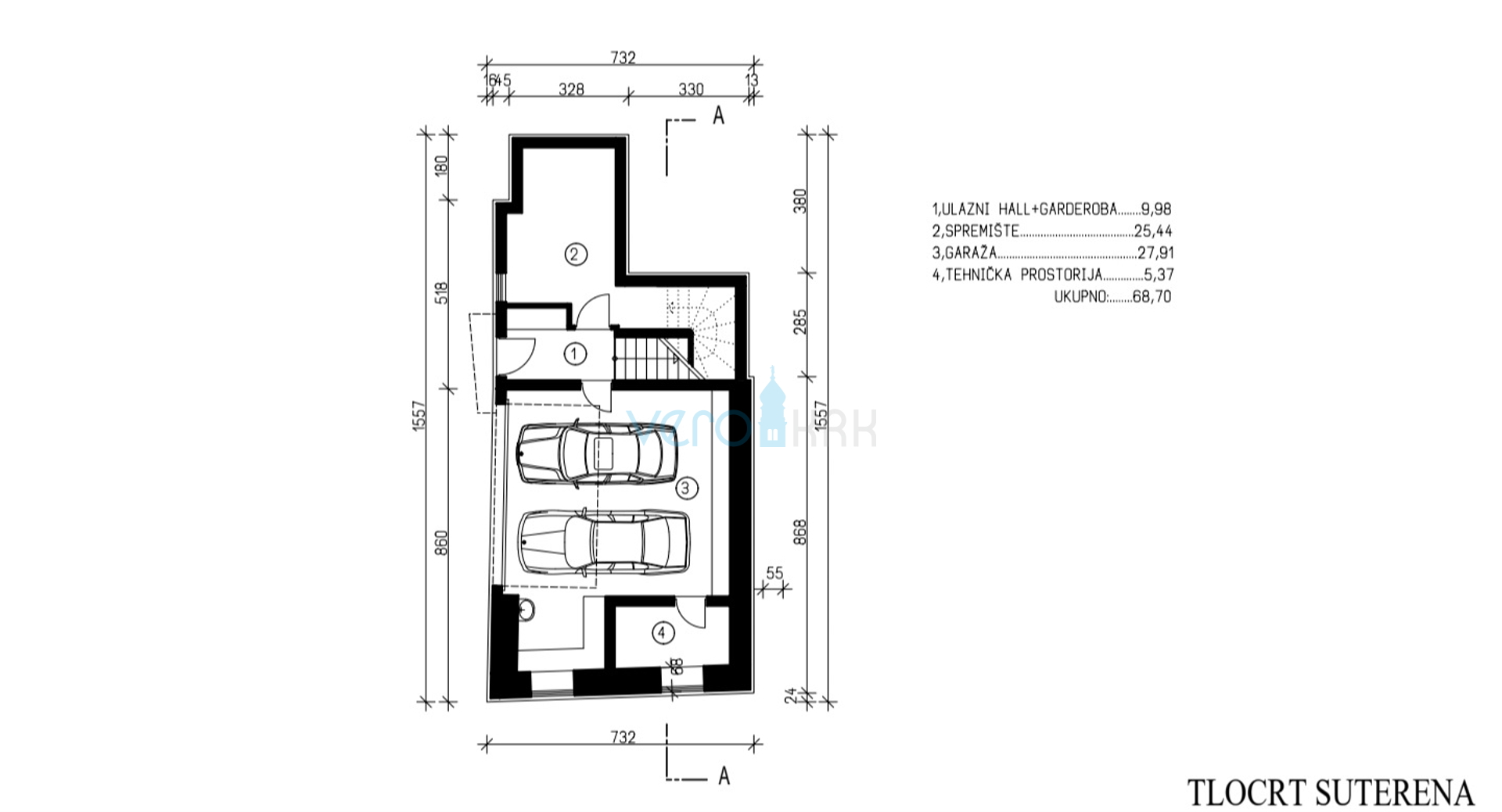
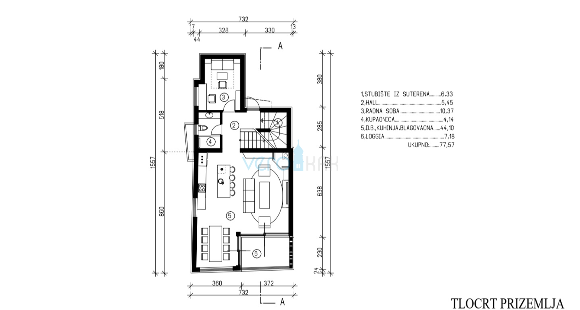
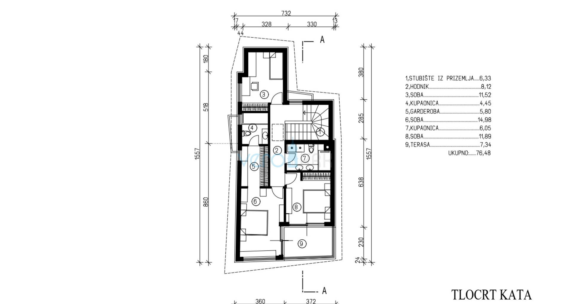
Rijeka, Kostrena, Na prodaju je stara samostojeća kuća s projektom i građevinskom dozvolom za izgradnju nove kuće na tri etaže sa bazenom. U suterenu kuće nalazila bi se garaža za dva osobna vozila, spremište, ulazni prostor i stepenište koje povezuj
e sa stambenim prostorom. Dvije gornje etaže čine prizemlje sa dnevnim boravkom, kuhinjom i blagovaonicom u otvorenom prostoru sa izlazom na lođu, kupaonicom, radnom sobom i stepeništem za kat gdje bi se nalazile tri spavaće sobe, od kojih je jedna sa en suite kupaonicom, walk-in ormarom i terasom. Sa prizemlja će biti lijep pogled na okolinu i djelomično na more, a sa kata će biti panoramski. Parcela je ukupne površine 898 m2 te se nalazi 1000 m od popularne plaže Žurkovo. Na cijenu se obračunava PDV.
... prikaži sve
- Osnovni podaci
- Novogradnja
- Tip kuće: samostojeća
- Površina: 273,5 m2
- Broj soba: 4,0
- Broj kupatila: 2
- Energetski razred: U pripremi
- Infrastruktura
- Voda
- Aktivna telefonska linija
- Telefonska instalacija
- Kanalizacija
- ADSL
- Dodatne informacije
- Stanje: očuvano
- Broj parking mesta: 3
- Lokacija
- Država: Hrvatska
- Regija: Primorsko-goranska županija
- Opština: Kostrena, 51221
- Naselje: Kostrena
- Pogledaj na karti
- Dozvole
- Građevinska dozvola
- Vlasnički list
- Slične nekretnine
- Kuća - samostojeća - Novogradnja - Kostrena (Glavani) - 270 m2 - 1.250.000 EUR
- Kuća - dvojnica - Novogradnja - Kostrena (Kostrena Sveta Lucija) - 249 m2 - 790.000 EUR
- Kuća - samostojeća - Novogradnja - Kostrena (Kostrena Sveta Lucija) - 295 m2 - 2.300.000 EUR
- Kuća - samostojeća - Novogradnja - Kostrena (Dujmići) - 295 m2 - 1 EUR
- Kuća - samostojeća - Kostrena (Glavani) - 250 m2 - 1.266.000 EUR
Vero Krk j.d.o.o.
Put mora 2/1, 51513 Omišalj
- Svi oglasi ove agencije
- Web site agencije
- Broj u registru posrednika: 193/2019
Zapratite nas na
Facebook-u
i
Instagramu
za
najbolje ponude nekretnina u kategoriji Kuće
u mjestu Kostrena, Hrvatska
Navigacija
Kontaktirajte oglašivača
Kontaktirajte oglašivača
Vero Krk j.d.o.o.
Put mora 2/1, 51513 Omišalj
- Tel. agenta: xxxx-xxxx-2102 Prikaži broj
- Tel: xxxx-xxxx-4911 Prikaži broj
- Mob: xxxx-xxxx-2102 Prikaži broj
- Svi oglasi ove agencije
- Web site agencije
- Broj u registru posrednika: 193/2019











