Vodice, Šibenik - Prostrani trosoban stan s velikom terasom i pogledom na more
Hrvatska, Šibensko-kninska županija, Vodice, Vodice,
- 69 m2
- 4
- 2
- 330.000 EUR stambeni kredit
Kaiser Immobilien s ponosom predstavlja: Prostrani trosoban stan s velikom terasom i pogledom na more, Vodice
U popularnom turističkom središtu Vodice, u mirnom naselju Bristak, smjestila se ova moderna stambena zgrada sa samo tri apartmana. Kaiser I
mmobilien s ponosom nudi na prodaju ovaj izvanredan trosoban stan na prvom katu, koji nudi savršen spoj suvremenog dizajna, udobnosti i prekrasnog pogleda na more.
O STANU:
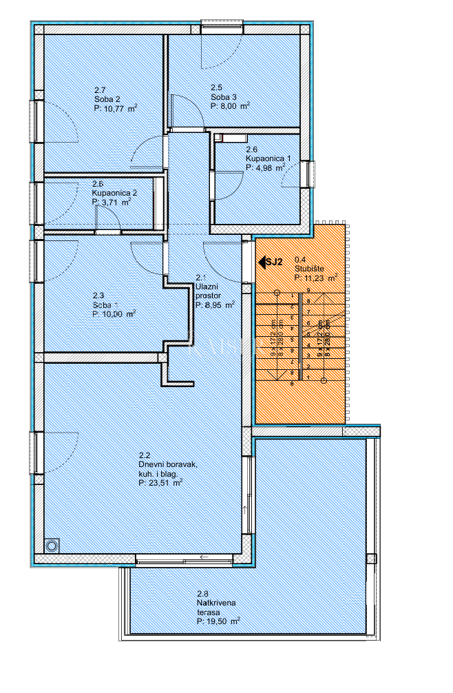
Stan, oznake SJ2, nalazi se na prvom katu zgrade i nudi ukupnu stambenu površinu od 69,86 m². Pažljivo osmišljen raspored prostorija osigurava maksimalnu iskoristivost prostora i ugodan boravak, s naglaskom na otvorenost i svjetlost.
RASPORED PROSTORIJA:
Dnevni boravak, kuhinja i blagovaonica: 23,51 m² – Prostran i svijetao "open space" koncept s izlazom na veliku natkrivenu terasu.
Spavaća soba 1: 10,00 m²
Spavaća soba 2: 10,77 m²
Spavaća soba 3: 8,00 m²
Kupaonica 1: 4,98 m²
Kupaonica 2: 3,71 m²
Ulazni prostor / Hodnik: 8,95 m²
Natkrivena terasa: 19,50 m² – S prostrane terase pruža se divan pogled na more i obližnje otoke, idealna za opuštanje i uživanje na otvorenom.
VRHUNSKA OPREMA I KVALITETA GRADNJE:
U gradnji su korišteni visokokvalitetni materijali i oprema po najnovijim standardima, što uključuje:
Keramiku više klase
Kvalitetnu vanjsku i unutarnju stolariju
Komarnike na prozorima
Klima uređaj
Podno grijanje
Moderno opremljene kupaonice
Video nadzor za dodatnu sigurnost
LOKACIJA I DODATNE POGODNOSTI:
Atraktivna i mirna lokacija: Smješten u naselju Bristak, prema Tribunju, na samo 300 metara od plaže. Lokacija osigurava mir i tišinu, daleko od ljetne vreve centra Vodica, koji je udaljen oko 800 metara.
Privatnost: Zgrada sa samo tri stana nudi visoku razinu privatnosti.
Uključeno u cijenu: Apartmanu pripada jedno parkirno mjesto i spremište, što je već uračunato u cijenu.
Ovaj stan predstavlja izvrsnu priliku za one koji traže moderan i udoban dom na jednoj od najljepših lokacija na Jadranu, bilo za cjelogodišnji život ili kao investicija za turistički najam.
Agencijska provizija za kupca iznosi 3% + PDV i plaća se u slučaju kupovine nekretnine, pri zaključenju prvog pravnog akta. Razgledavanje nekretnine moguće je isključivo uz prethodno potpisivanje ugovora o posredovanju u prometu nekretnina.
Ako nekretninu želite osobno posjetiti, kontaktirajte:
Joško Bašić
E-mail:
Tel:
/
ID KOD AGENCIJE: 137-185
... prikaži sve
- Osnovni podaci
- Novogradnja
- Površina: 69,0 m2
- Broj soba: 4,0
- Broj kupatila: 2
- Sprat: 1 od 2
- Energetski razred: A+
- Dodatne informacije
- Lokacija
- Država: Hrvatska
- Regija: Šibensko-kninska županija
- Opština: Vodice, 22211
- Naselje: Vodice
- Pogledaj na karti
- Dozvole
- Građevinska dozvola
- Slične nekretnine
- Stan - Novogradnja - Vodice (Vodice) - 72 m2 - 260.000 EUR
- Stan - Novogradnja - Vodice (Vodice) - 71 m2 - 290.000 EUR
- Stan - Novogradnja - Vodice (Vodice) - 74 m2 - 195.000 EUR
- Stan - Novogradnja - Vodice (Vodice) - 74 m2 - 236.352 EUR
- Stan - Novogradnja - Vodice (Vodice) - 69 m2 - 342.265 EUR
Kaiser Immobilien d.o.o.
Maršala Tita 97, 51410 Opatija
- Svi oglasi ove agencije
- Web site agencije
- Broj u registru posrednika: 133/2024
Zapratite nas na
Facebook-u
i
Instagramu
za
najbolje ponude nekretnina u kategoriji Stanovi
u mjestu Vodice, Hrvatska
Navigacija
Kontaktirajte oglašivača
Kontaktirajte oglašivača
Kaiser Immobilien d.o.o.
Maršala Tita 97, 51410 Opatija
- Tel: xxxx-xxxx-3491 Prikaži broj
- Mob: xxxx-xxxx-5152 Prikaži broj
- Svi oglasi ove agencije
- Web site agencije
- Broj u registru posrednika: 133/2024









