Prodaja, Stan, Gajnice, Gajnice, 4,5s, 140m2
Hrvatska, Grad Zagreb, Zagreb, Podsused - Vrapče, Gajnice
-
140
-
4
-
1
-
579.000 EUR stambeni kredit
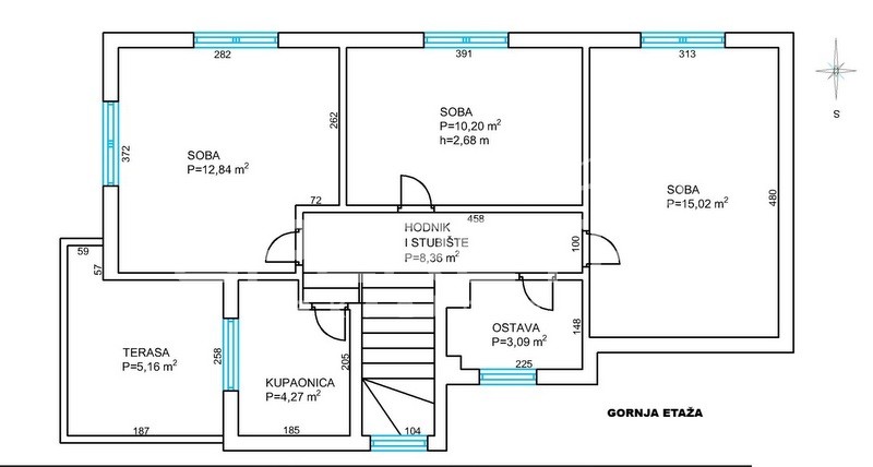
PRODAJA, STAN, ZAGREB, GAJNICE, 140m2, vrt, 4.5-sobni, kao nov, stan ima 108m2 zatvorenog prostora. Na donjoj etaži: hodnik, dnevni boravak s kuhinjom i blagovaonicom, wc (ima prozor), ostava ispod stepenica, stubište; Na gornjoj etaži: hodnik, 3 sobe, vešeraj (ima prozor), kupaonica s wc-om (ima prozor). U ukupnu navedenu kvadraturu stana su po koefic. obračunati terasa i vrt na koje se ide iz dnevnog boravka, tavan od 37m2 te balkon i vanjsko parkirno mjesto. Stan ne zahtjeva nikakva ulaganja, u zasebnoj je stambenoj jedinici (kuća u nizu), armirano-betonska sa termo fasadom, pruža dojam života u kući. Idealna prilika za Kupca koji želi udobnost toplog doma, puno dodatnog prostora, privatni ograđeni vrt za roštilj, igru i druženja u mirnom uređenom susjedstvu na 5 min. pješice od dućana, škole, vrtića, placa i ostalih potrebnih sadržaja. PREPORUČUJEMO!
- Osnovni podaci
- Površina: 140,0 m2
- Broj soba: 4,0
- Broj kupatila: 1
- Energetski razred: B
- Infrastruktura
- Gas
- Dodatne informacije
- Površina balkona: 6,00 m2
- Površina vrta: 92,00 m2
- Stanje: u jako dobrom stanju
- Podrum
- Lokacija
- Država: Hrvatska
- Regija: Grad Zagreb
- Opština: Zagreb, 10000
- Naselje: Podsused - Vrapče
- Gajnice
- Pogledaj na karti
- Dozvole
- Građevinska dozvola
- Lokacijska dozvola
- Upotrebna dozvola
- Grijanje
- Tip grijanja: Centralno grejanje (vlastito) plin
Opereta d.o.o.
Ulica grada Vukovara 20, 10000 Zagreb
- Svi oglasi ove agencije
- Web site agencije
-
Licencirani posrednik
- Broj u registru posrednika: 208/2009
Zapratite nas na
Facebook-u
i
Instagramu
za
najbolje ponude nekretnina u kategoriji Stanovi
u mjestu Zagreb, Hrvatska
Navigacija
Kontaktirajte oglašivača
Kontaktirajte oglašivača
Opereta d.o.o.
Ulica grada Vukovara 20, 10000 Zagreb
- Tel: xxxx-xxxx-0050 Prikaži broj
- Fax: xxxx-xxxx-4706 Prikaži broj
-
Licencirani posrednik
- Broj u registru posrednika: 208/2009