Prodaja, Stan, Globetka, Vukovarska, 2,5s, 68m2

Hrvatska, Međimurska županija, Čakovec, Globetka, Vukovarska

  • Oglas broj: 292702
  • Agencijska šifra: I35037
  • Datum objave: 13.03.2026
PRODAJA, STAN, ČAKOVEC
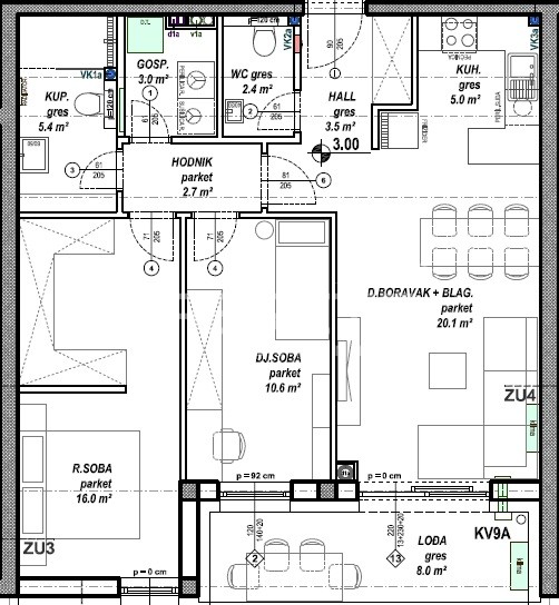
Prodaje se stan površine 68,70 m2 s lođom površine 8,00 m2 na prvom katu niskoenergetske stambeno - poslovne zgrade na odličnoj lokaciji. Zgrada se sastoji od podruma, prizemlja, prvog, drugog i trećeg kata te sadrži ukupno 108 stambenih jedinica i 2 poslovna prostora. Moguć je odabir podnih obloga (keramika, parket ili laminat) te odabir unutarnje stolarije. Uz stan moguća je kupovina vanjskog parkirnog mjesta, garažnog mjesta bez spremišta ili garažnog mjesta sa spremištem.
Za dodatne informacije stojimo na raspolaganju, a ovisno o načinu i količini plaćanja moguća je određena korekcija cijene.
Prikaži više
  • Osnovni podaci
  • Površina: 68,7 m2
  • Broj soba: 2,0
  • Broj kupatila: 1
  • Sprat: 1 od 3
  • Energetski razred: Nema
  • Dodatne informacije
  • Stanje: u jako dobrom stanju
  • Lift
  • Lokacija
  • Država: Hrvatska
  • Regija: Međimurska županija
  • Opština: Čakovec, 40000
  • Naselje: Globetka
  • Vukovarska
  • Pogledaj na karti
  • Dozvole
  • Građevinska dozvola
  • Lokacijska dozvola
  • Grijanje
  • Tip grijanja: Centralno grejanje (vlastito) plin
Navigacija
Pretraga
Kontaktirajte oglašivača



Kontaktirajte oglašivača
Logo agencije Opereta d.o.o.
Opereta d.o.o.

Ulica grada Vukovara 20, 10000 Zagreb

  • Licencirani posrednik Licencirani posrednik
  • Broj u registru posrednika: 208/2009
Lokacija nekretnine na karti
Škola Bolnica Banka Restoran Ljekarna Vrtić Bus stanica Univerzitet
Obračun kredita
Kreditni kalkulator