Apartman S1 83 m2 PRODAJA Sveti Filip i Jakov, 3s, prizemlje, parking, vrt
Hrvatska, Zadarska županija, Sveti Filip I Jakov, Sveti Filip i Jakov,
- 83 m2
- 3
- 1
- 332.000 EUR stambeni kredit
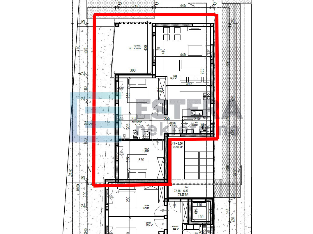
Prodaje se apartman s vrtom – Sveti Filip i Jakov Na prodaju je moderan i funkcionalan apartman s privatnim vrtom, smješten u manjoj stambenoj zgradi s ukupno sedam stanova, na mirnoj i vrlo traženoj lokaciji u Svetom Filipu i Jakovu. Nekretnina se n
alazi u blizini mora i svih potrebnih sadržaja, što je čini izvrsnim izborom kako za turistički najam, tako i za ugodno cjelogodišnje stanovanje. Apartman se sastoji od dvije spavaće sobe, prostranog dnevnog boravka povezanog s kuhinjom i blagovaonicom, kupaonice te terase s izlazom na pripadajući vrt, koji pruža dodatni osjećaj privatnosti i komfora. Stan je kvalitetno opremljen – u spavaćim sobama postavljeni su parketi, ugrađeni su klima uređaji u svim prostorijama, a kupaonica ima podno grijanje. Zgrada je opremljena liftom, a ugrađena je PVC stolarija s roletama visoke kvalitete. Uz apartman dolazi privatno parkirno mjesto te spremište u suterenu zgrade. Površine (obračun NKP): - Zatvoreni prostor: 64,43 m2 - Terasa: 13,11 m2 × 0,50 = 6,56 m2 - Vrt: 41,80 m2 × 0,10 = 4,18 m2 - Spremište: 9,69 m2 × 0,50 = 4,85 m2 - Parkirno mjesto: 13,20 m2 × 0,20 = 2,64 m2 Ukupno obračunski (NKP): 82,66 m2 Ova nekretnina predstavlja izvrsnu priliku za ulaganje ili miran život u jednom od najpoželjnijih mjesta srednje Dalmacije. Kontakt: Vedran Knežević + WhatsApp i Viber dostupni
... prikaži sve
- Osnovni podaci
- Novogradnja
- Površina: 82,7 m2
- Broj soba: 3,0
- Broj kupatila: 1
- Orentacija: Sjever,Istok,Zapad
- Energetski razred: U pripremi
- Infrastruktura
- Voda
- Kanalizacija
- Klima
- Dodatne informacije
- Stanje: očuvano
- Broj parking mesta: 1
- Lift
- Lokacija
- Država: Hrvatska
- Regija: Zadarska županija
- Opština: Sveti Filip I Jakov, 23207
- Naselje: Sveti Filip i Jakov
- Pogledaj na karti
- Dozvole
- Građevinska dozvola
- Slične nekretnine
- Stan - Novogradnja - Sveti Filip I Jakov (Sveti Petar na Moru) - 76 m2 - 280.000 EUR
- Stan - Novogradnja - Sveti Filip I Jakov (Sveti Petar na Moru) - 79 m2 - 277.000 EUR
- Stan - Novogradnja - Sveti Filip I Jakov (Sveti Petar na Moru) - 79 m2 - 290.000 EUR
- Stan - Novogradnja - Sveti Filip I Jakov (Sveti Filip i Jakov) - 76 m2 - 278.100 EUR
- Stan - Novogradnja - Sveti Filip I Jakov (Sveti Petar na Moru) - 85 m2 - 385.000 EUR
Estera nekretnine
Nemčićeva 10, 10000 Zagreb
- Svi oglasi ove agencije
- Web site agencije
- Broj u registru posrednika:
Zapratite nas na
Facebook-u
i
Instagramu
za
najbolje ponude nekretnina u kategoriji Stanovi
u mjestu Sveti Filip I Jakov, Hrvatska
Navigacija
Kontaktirajte oglašivača
Kontaktirajte oglašivača
Estera nekretnine
Nemčićeva 10, 10000 Zagreb
- Tel. agenta: xxxx-xxxx-8465 Prikaži broj
- Tel: xxxx-xxxx-9444 Prikaži broj
- Fax: xxxx-xxxx-9445 Prikaži broj
- Svi oglasi ove agencije
- Web site agencije
- Broj u registru posrednika:






